Broad Leys Road, Barnwood, Gloucester

3 bedroom Link detached house

£325,000

  • 3
  • 2
  • 1

Summary

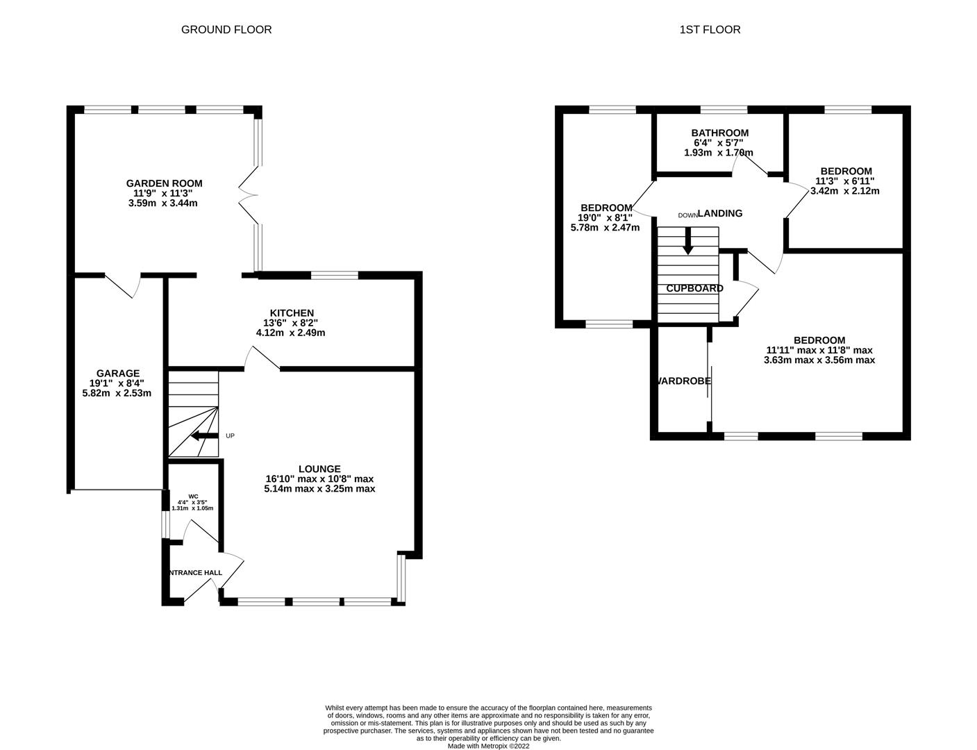
A spacious link detached family home situated in the popular residential area of Barnwood offers generous living accommodation alongside three double bedrooms. Extended to the rear, the property offers a light and airy garden room overlooking the private and enclosed rear garden alongside potential to extend into the integral garage. Viewing is highly advised for growing families.

Key Features

  • Three double bedroom link detached family home
  • Generous living accommodation including garden room extension
  • Fitted kitchen with integrated appliances
  • Integral garage with potential to convert
  • Private and enclosed rear garden
  • EPC rating D59

Description

Accommodation

Step into the entrance hallway providing access to the downstairs cloakroom and to the spacious living room allowing plenty of natural light through the large window overlooking the front. The lounge also provides access to the first floor and opens to the kitchen to the rear.
Benefitting from an ample storage and worktop space, the kitchen overlooks the enclosed rear garden and benefits from an array of integrated appliances to include four ring gas hob, electric oven, dishwasher, washing machine and fridge. Accessed from the kitchen, the current owners have extended to create a light and airy garden room, convenient for an extra living room for growing families or dining space. French doors open to the rear garden whilst a personal use door provides access to the integral garage allowing scope to convert to additional living space if required.
Taking the stairs to the first floor, the internal specification of the property is complete by three double bedrooms, with built in wardrobes to the master, and white suite family bathroom.

Outside

Externally the property boasts a private and enclosed rear garden with both patio and lawned areas with gated side access leading to the front of the property. Off-road parking for two vehicles is found to the front alongside access to the garage via up and over door.

Location

Offering various amenities alongside primary and secondary schooling the suburb of Barnwood has remained a firm favourites with families, offering Barnwood arboretum and nature park, various playgrounds, public transport links as well as easy access to Gloucester City, Cheltenham Spa and Bristol. Positioned at the end of a private and quiet cul-de-sac the property is screened by mature greenery.

Local Authority, Services & Tenure

Gloucester City Council - Tax Band C.
Mains water, drainage, gas and electric.
Freehold.


Location


Floorplan

Floorplan for Broad Leys Road, Barnwood, Gloucester

EPC

EPC for Broad Leys Road, Barnwood, Gloucester

Video Tour

Invalid video URL provided.