Wharfdale Way, Bridgend, Stonehouse

3 bedroom Semi-detached house for sale

£299,950

  • 3
  • 2
  • 2
  • 1,017 sq ft

Summary

Situated within close proximity to the Stroud Water Canal, this three bedroom semi-detached house offers ample scope for improvement and the opportunity to add your own stamp. Located on a corner plot, the property benefits from both front and rear gardens, ideal for following the sun on a summers day. The ground floor comprises an entrance hall, living room, dining room and kitchen, the kitchen provides access to the lean to. On the first floor are two double bedrooms, one single bedroom and the bathroom. The lean to has a WC, coal shed and garage, all with power and light. There is driveway parking for two vehicles. The property is being offered to the market CHAIN FREE.

Key Features

  • Semi-detached house
  • Three bedrooms
  • Corner plot with front and rear gardens
  • Driveway parking for two vehicles
  • Situated within close proximity of the Stroudwater Canal path
  • Opportunity to add your own stamp
  • Chain free
  • Freehold
  • Council tax band B (£1,975.70)
  • EPC rating C72

Description

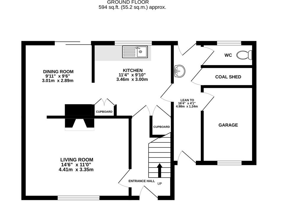
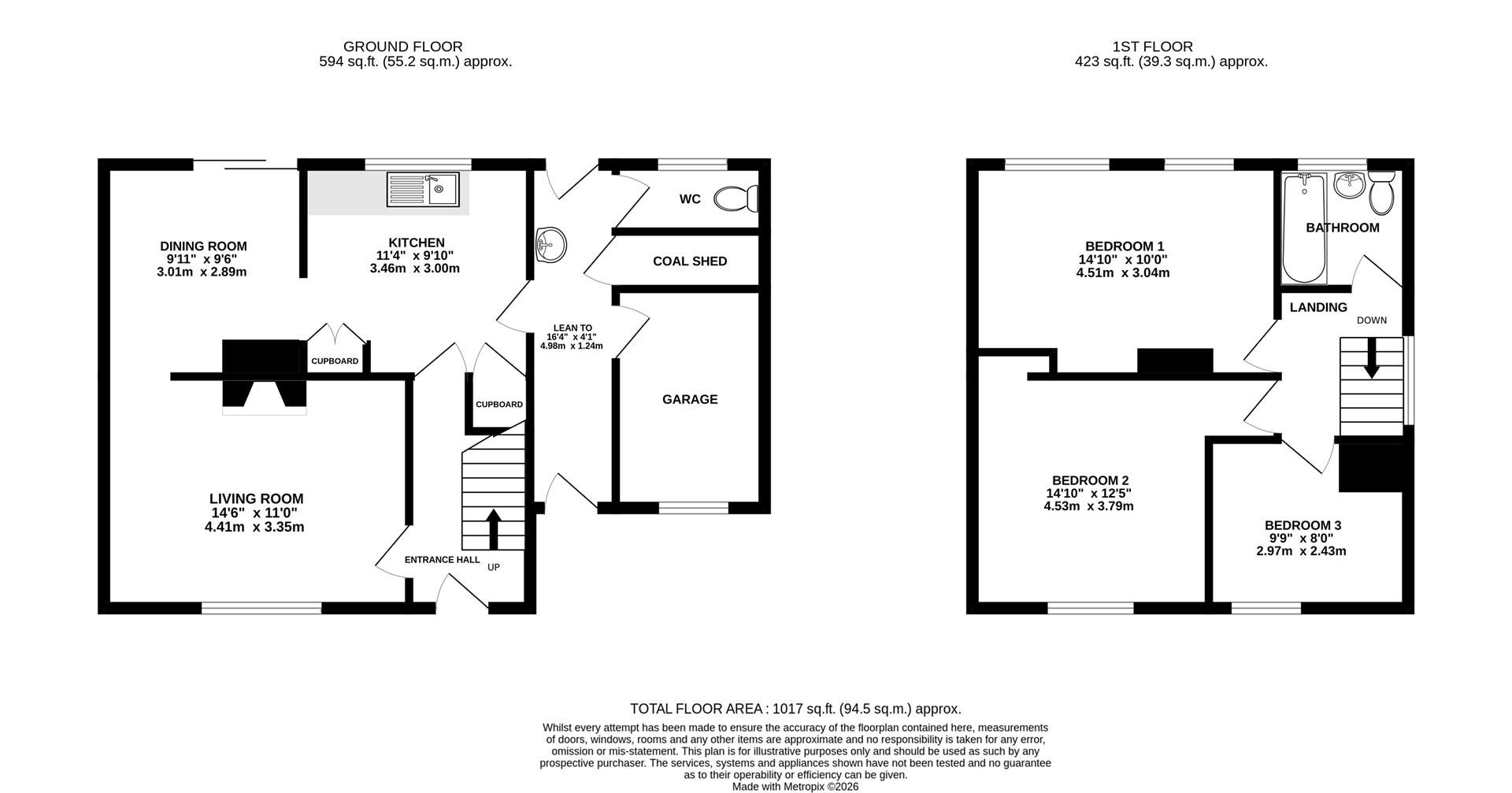
Entrance Hall

uPVC double-glazed door to entrance hall. Access to living room, kitchen and stairs rising to the first floor.

Living Room

uPVC double-glazed window to front elevation. Fireplace. Radiator.

Dining Room

Aluminium sliding doors to rear garden. Radiator.

Kitchen

uPVC double-glazed window to rear elevation. Access to lean to and storage cupboard. Wall and base units with stainless steel sink with mixer tap and drainer. Space for washing machine, fridge and freestanding oven.

Lean To

Wooden doors to front and rear. Access to WC, coal shed and garage. Wash hand basin.

Bedroom One

Two uPVC double-glazed windows to rear elevation. Shelves.

Bedroom Two

uPVC double-glazed window to front elevation. Radiator.

Bedroom Three

uPVC double-glazed window to front elevation.

Bathroom

uPVC double-glazed window to rear elevation. Low-level WC, wash hand basin and bath with shower over. Radiator.

Outside

The property is conveniently situated on a corner plot. The front of the property has driveway parking for two vehicles and a large lawned area to one side along with a front garden. The rear garden can be accessed via the front and is mostly laid to lawn with a patio space. The lean to provides access to a WC, garage and coal shed, all with power and light.

Location

The property is located just on the edge of Stonehouse town. Local facilities include a Co-op with a Post Office, restaurants, primary and secondary schools. The property is approximately two miles to Junction 13 of the M5 motorway providing access to Gloucester, Cheltenham and Bristol. Stonehouse railway station has a regular train service to London and Cheltenham. The town is situated approximately three miles west of Stroud and twelve miles south of Gloucester.

Material Information

Tenure: Freehold.
Council tax band: B.
Local authority and rates: Stroud District Council - £1,975.70 (2026/27).
Electricity supply: mains.
Water supply: mains.
Sewerage: mains.
Heating: gas central heating.
Broadband speed: 15 Mbps (basic), 74 Mbps (superfast) and 10,000 Mbps (ultrafast).
Mobile phone coverage: EE, Three, O2 and Vodafone.


Location


Floorplan

Floorplan for Wharfdale Way, Bridgend, Stonehouse Floorplan for Wharfdale Way, Bridgend, Stonehouse Floorplan for Wharfdale Way, Bridgend, Stonehouse

EPC

EPC for Wharfdale Way, Bridgend, Stonehouse

Similar Properties

Maurice Shill Close, Great Oldbury, Stonehouse
For Sale

Maurice Shill Close, Great Oldbury, Stonehouse

3 Bed Semi-detached house For Sale
Guide price £315,000
Gloucester Road, Stonehouse
Sold STC

Gloucester Road, Stonehouse

2 Bed Semi-detached house Sold STC
Guide price £185,000
Court View, Stonehouse
For Sale

Court View, Stonehouse

3 Bed End of terrace house For Sale
Guide price £270,000