Chestnut Road, Brockworth, Gloucester

2 bedroom Apartment Sold STC

£88,500

  • 2
  • 1
  • 2
  • 624 sq ft

Summary

This well presented first-floor apartment in Brockworth offers modern living with excellent amenities and transport links nearby. The property features a spacious ensuite master bedroom, a contemporary kitchen with integrated appliances, gas central heating, and an allocated parking space. This property would be ideal for first-time buyers. Available on a 50% shared ownership basis.

Key Features

  • Open plan Kitchen/Living/Dining Room
  • First floor apartment
  • Allocated parking space
  • Kitchen with integrated appliances
  • En suite to master with an addtional bathroom
  • Double glazing and gas central heating
  • Available on a 50% shared ownership basis
  • 118 year lease
  • Tewkesbury Borough Council- Tax Band A - £1,500.09 per annum (2025/26)
  • EPC Rating B82

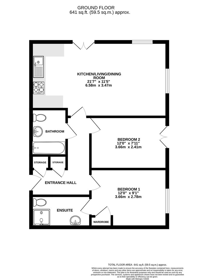
Description

Entrance Hall

There is a double-glazed window to the side elevation, two useful storage cupboards, a radiator,

Bedroom One

Double-glazed window to side elevation, radiator, built-in wardrobe, door to;

En Suite

Shower cubicle with mains shower, washhand basin with mixer tap, WC, tiled splashback and heated towel rail.

Bedroom Two

Double-glazed window to side elevation, radiator.

Bathroom

Bath with shower over, washhand basin with mixer tap, WC, heated towel rail and tiled splashbacks.

Kitchen/ Living Room/Dining Room

The kitchen area consists of a double-glazed window to the side elevation, a range of matching modern wall and base units with laminate work surfaces over and matching upstands, inset one bowl stainless steel sink with mixer tap and drainer unit, integrated appliances to include fridge/freezer, four ring gas hob with electric oven and stainless steel extractor hood over, cupboard housing wall mounted combi boiler, inset ceiling spotlights, vinyl flooring. The Living/Dining Room consists of double-glazed windows to the side and rear elevations and two radiators.

Outside

There is one allocated off road parking space and bin store.

Location

Brockworth is conveniently located between Gloucester and Cheltenham and enjoys a range of local amenities within Brockworth business park including; Tescos supermarket, pub, and a variety of other eateries such as Costa, Subway, Greggs, and Dominoes. Junction 11A of the M5 motorway is within easy access as well as Gloucester train station which is situated within 4.9 miles away.

Material Information

Tenure: Leasehold. 125 years from 12/08/2018 , lease remaining 118 years. Management company – Gateway Property Maintenance. Service Charge – £1529.17 per annum. Reviewed every year - lease management fee £26.23 per calendar month. No ground rent.
Shared Ownership - Rent Charges : £276.09 per calendar month via Heylo Housing
Council tax band: Tax Band A
Local authority and rates: Tewkesbury Borough Council, £1,500.09 (2025/2026)
Electricity supply: Meter
Water supply: Mains
Sewerage: Mains
Heating: Electric
Broadband speed: Standard 8 Mbps, Superfast 37 Mbps and Ultrafast 1800 Mbps.
Mobile phone coverage: Vodafone (Likely), EE (Likely), Three (Limited) and O2 (Likely).


Location


Floorplan

Floorplan for Chestnut Road, Brockworth, Gloucester

EPC

EPC for Chestnut Road, Brockworth, Gloucester

Similar Properties

Laynes Road, Hucclecote, Gloucester
For Sale

Laynes Road, Hucclecote, Gloucester

2 Bed Semi-detached bungalow For Sale
Guide price £375,000
Sayers Crescent, Brockworth, Gloucester
For Sale

Sayers Crescent, Brockworth, Gloucester

3 Bed Semi-detached house For Sale
Guide price OIRO £195,000
Barrington Drive, Hucclecote, Gloucester
For Sale

Barrington Drive, Hucclecote, Gloucester

3 Bed Semi-detached house For Sale
Guide price £290,000