Brookfield Road, Hucclecote, Gloucester

4 bedroom Semi-detached house Sold STC

£475,000

  • 4
  • 2
  • 3
  • 1,967 sq ft

Summary

New to the market is this stylish four bedroom family home situated in the popular suburb of Hucclecote. Extended by the current owners, this home offers an impressive and contemporary finish throughout alongside versatile living accommodation. To the front, the home offers generous parking whilst the rear garden has been landscaped to provide an enjoyable outside area. Viewing is highly advised to appreciate what this home has to offer.

Key Features

  • Stylish four bedroom family home
  • Recently renovated and extended by the current owners to provide versatile living accommodation
  • Immaculately presented throughout
  • Generously sized plot
  • Flexible outbuilding which would lend itself to being an annex (subject to planning)
  • Ample off road parking
  • Private and enclosed rear garden
  • Highly sought after area
  • EPC C71
  • Tax Band C - Gloucester City Council £1990.01(2025/2026)

Description

Entrance Hall

Stepping into the property, the entrance hall is a great size and lends space for coats, shoes and such like. The entrance hall provides access to the shower room, kitchen dining room and stairs to the first floor.

Shower Room

The stylish shower room benefits from a recently installed suite comprising of WC, wash hand basin and double width step in shower enclosure with tiled surround. Frosted window to the front aspect.

Kitchen Dining Room

The heart of the home, the kitchen dining room has been well thought through to offer a sociable and versatile space. The dining area provides ample natural light from the sky lantern and French doors whilst offering a cosey feel from the double sided bio-ethanol fireplace which links between this room and the living room.

The recently installed Wren kitchen benefits from having a stylish finish with micro-cement work tops accompanied by sink and Quooker tap. The kitchen benefits ample storage in a range of floor and wall units alongside integrated dishwasher and fridge freezers. There is also space for a cooker.

Study / Pantry

The pantry is a great size and offers additional storage. Window to front aspect.

Utility Room

Deceptively spacious, the utility room is a handy space with further storage and plumbing for washing machine and tumble dryer. There is also a width height heated dog shower with black panneling.

Living Room

The dining room wraps around into the living space providing a private yet spacious room with French doors to the outside patio area.

Landing

The landing grants access to four bedrooms and a family bathroom.

Master Bedroom

An impressive master bedroom with a free standing roll top bath cleverly positioned to make the most from the views through the Juliette Balcony which over looks the back garden.

Second Bedroom

Utilised by the current owners as a walk in wardrobe, this bedroom is also a double and benefits from dual aspect windows to the side and front aspect.

Third Bedroom

Double bedroom with window to rear aspect.

Fourth Bedroom

Double bedroom with window to the front aspect.

Bathroom

Stylish bathroom with WC, wash hand basin and bath with shower over and tiled surround.

Outside

To the front, the property benefits from a pebbled driveway providing parking for multiple vehicles. Accessed via the side gate, the back garden has been landscaped to create a sociable and low maintenance space. The garden offers a combinations of patio and lawned areas accompanied by a covered seating area and a variety of raised borders, plants and shrubs.

Out Building

Accessed via French doors, the outbuilding benefits from plenty of natural light from floor to ceiling windows and would lend itself to being a home office, playroom or self contained annex (subject to planning permission).

Location

Located southeast of the historic Gloucester City Centre, the popular area of Hucclecote has lots to offer with an array of shops, transport links, and schools. Various local amenities include the local Dinglewell and Hillview junior schools as well as access to several secondary and grammar schools being located within the city. A short distance away is access to the M5, providing ideal links to Birmingham and Bristol, whilst a direct line to London Paddington can be located at Gloucester Station. There are also regular bus services to both Cheltenham and Gloucester. The immediate locality offers various walks and open spaces within arguably one of Gloucester's most desirable established residential areas. Access to the countryside is a short walk or cycle ride away, as well as a children's play area, Hucclecote Green, and meadows within close proximity.

Material Information

Tenure: Freehold.
Council Tax Band: Tax Band C
Local Authority and Rates: Gloucester City Council; £1990.01(2025/2026)
Electricity supply: Mains
Water supply: Mains
Sewerage: Mains
Heating: Gas central heating
Broadband speed: Standard 17 Mbps, Superfast 67 Mbps, Ultrafast 1000 Mbps
Mobile phone coverage: EE(Likely), Three(Likely), 02(Likely) and Vodafone(Likely)


Location


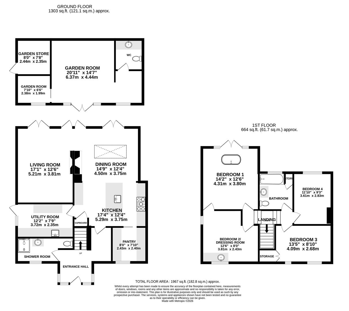
Floorplan

Floorplan for Brookfield Road, Hucclecote, Gloucester

EPC

EPC for Brookfield Road, Hucclecote, Gloucester

Similar Properties

Barrington Drive, Hucclecote, Gloucester
For Sale

Barrington Drive, Hucclecote, Gloucester

3 Bed Semi-detached house For Sale
Guide price £290,000
Ermin Street, Brockworth, Gloucester
Sold STC

Ermin Street, Brockworth, Gloucester

3 Bed Detached house Sold STC
Guide price Guide Price £225,000
Insley Gardens, Hucclecote, Gloucester
For Sale

Insley Gardens, Hucclecote, Gloucester

3 Bed Semi-detached house For Sale
Guide price £325,000