Trevor Road, Hucclecote, Gloucester

3 bedroom Semi-detached house

£279,950

  • 3
  • 2
  • 1
  • 1,158 sq ft

Summary

A conveniently located family home located in the popular suburb of Hucclecote with a variety of local amenities, transport links, and schools. This property offers ample off-road parking to the front as well as a good-sized rear garden to the rear. Now in need of updating and modernising but offering fantastic potential to create a wonderful family home. Chain free.

Key Features

  • Three double bedrooms
  • In need of updating
  • Private and enclosed large rear garden
  • Grounds of the property are approaching 0.13 of an acre
  • Perfect project for someone looking to create their forever home
  • Close to local amenities and transport links
  • Potential to extend subject to obtaining the relevant planning permissions
  • Chain free
  • Gloucester City Council - Tax Band C (£1900.50 per annum)
  • EPC Rating D64

Description

Entrance Hall

Stairs to first floor, doors to the downstairs accommodation, radiator, understairs cupboard.

Living Room

Double glazed bay window to the front elevation, radiator.

Dining Room

Electric fireplace, radiator, French doors to the rear leading you to the garden room.

Garden Room

Sliding doors to the rear.

Kitchen

Double glazed window to the side elevation, a range of wall and base units with laminate work surface over, Inset one bowl stainless steel sink and drainer unit, space for a cooker, space for further white goods, door to;

Lobby

W/C, storage cupboard, access to garage.

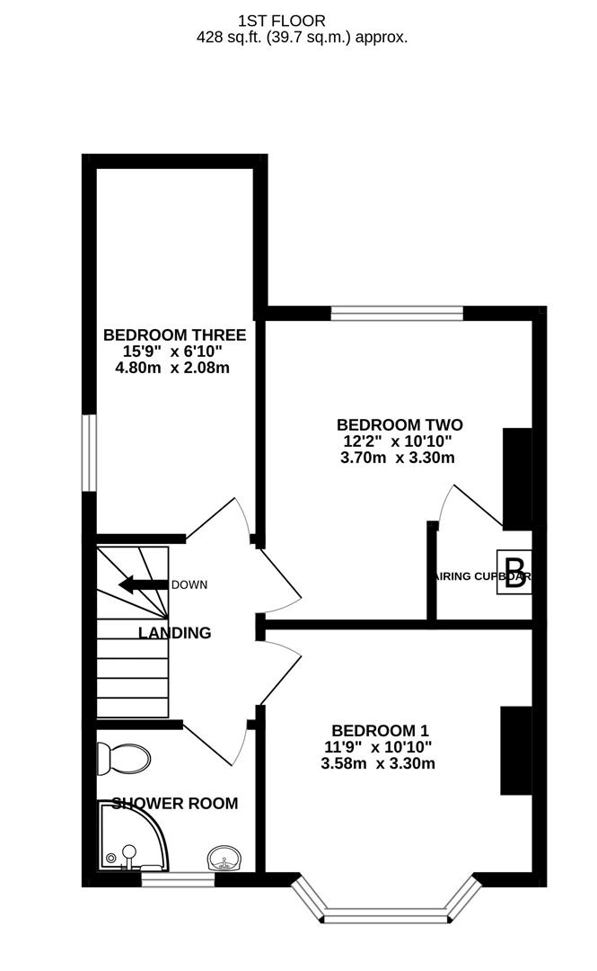
On the first floor

Landing

Doors to upstairs accommodation.

Bedroom One

Double glazed bay window to the front elevation, radiator.

Bedroom Two

Double glazed window to the rear elevation, radiator, built in storage space with boiler.

Bedroom Three

Double glazed window to the side elevation, radiator.

Shower Room

Double glazed obscure window to the front elevation, radiator, WC, wash hand basin, walk-in shower cubicle, tiled splash backs.

Outside

To the front of the property, there is a driveway providing off-road parking. To the side of the property, you have an area of lawn which gives the possibility to add additional parking, should it be required.
The rear garden is mainly laid to lawn with an abundance of mature trees, shrubs, and plants. There is also a patio area perfect for dining and entertaining. Grounds of the property are approaching 0.13 of an acre.

Garage

Up and over door to the front elevation, windows to the side and rear elevations, door to the rear elevation leading you to the back garden.

Location

Located southeast of the historic Gloucester City Centre, Trevor Road is located within the popular area of Hucclecote. Various local amenities include the 'Good' Ofsted-rated local Dinglewell Junior school as well as access to a number of secondary and grammar schooling being located within the City. A short distance away is access to the M5 providing ideal links to Birmingham and Bristol whilst a direct line to London Paddington can be located at Gloucester Station. Whilst the immediate locality offers various walks and open spaces within arguably one of Gloucester's most desirable established residential areas. Access to the Countryside is a short walk or cycle ride away as well as a children's play area, Hucclecote Green, and meadows within close proximity.

Material Information

Tenure - Freehold
Council Tax Band C
Gloucester City Council - £1900.50 per annum 2024/25
Electricity supply: Mains
Water supply: Mains
Sewerage: Mains
Heating: Gas central heating
Broadband speed: Standard 14 Mbps, Superfast 75 Mbps, Ultrafast 1000 Mbps
Mobile phone coverage: Vodafone (Limited), EE (Limited), Three (Limited) and O2 (Likely)


Location


Floorplan

Floorplan for Trevor Road, Hucclecote, Gloucester Floorplan for Trevor Road, Hucclecote, Gloucester Floorplan for Trevor Road, Hucclecote, Gloucester

EPC

EPC for Trevor Road, Hucclecote, Gloucester

Similar Properties

Ermin Park, Brockworth
For Sale

Ermin Park, Brockworth

4 Bed Semi-detached house For Sale
Guide price £425,000
Marleyfield Close, Churchdown, Gloucester
For Sale

Marleyfield Close, Churchdown, Gloucester

2 Bed Maisonette For Sale
Guide price £185,000
Lilliesfield Avenue, Barnwood, Gloucester
For Sale

Lilliesfield Avenue, Barnwood, Gloucester

3 Bed Semi-detached house For Sale
Guide price £390,000