River Leys, Swindon Village, Cheltenham

3 bedroom End of terrace house

£315,000

  • 3
  • 2
  • 1
  • 949 sq ft

Summary

This delightful property boasts two spacious reception rooms, perfect for entertaining guests or simply relaxing with your family. With three/four bedrooms, there is ample space for everyone to enjoy their own private sanctuary. The property features a modern kitchen and bathroom, along with newly fitted double glazing. Enjoy the convenience of nearby amenities, schools, and parks, making it an ideal choice for families.

Key Features

  • Popular location close to local amenities, local schools and good transport links nearby
  • Semi detached house
  • Recently renovated
  • Additional fourth bedroom/playroom and separate study
  • Modern bathroom
  • Off road parking
  • Enclosed and low maintenance rear garden
  • Potential rental income of £1,400 PCM
  • Cheltenham Borough Council - £1,747.29 per annum (2025/26)
  • EPC rating D66

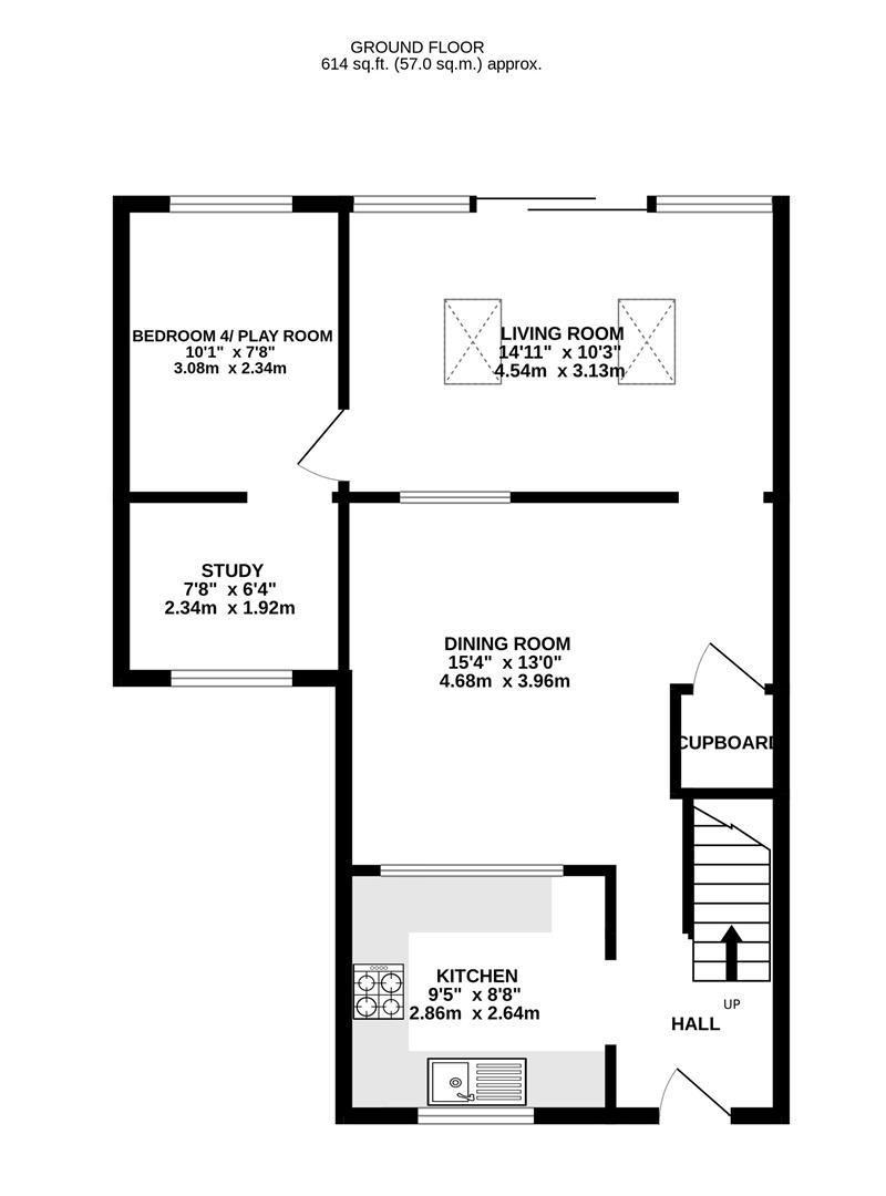
Description

Entrance Hall

Radiator, stairs to first floor.

Kitchen

Double glazed window to front elevation, a range of matching wall and base units with laminate work surface over, inset one bowl sink with mixer tap and drainer unit, space for freestanding cooker with extractor hood over, metro tiled splash backs, space and plumbing for washing machine and tumble drier, space for freestanding fridge freezer, vinyl flooring, opening to;

Dining Room

Understairs storage cupboard, fireplace with inset electric wood burner, radiator, wooden flooring, opening to;

Living Room

Double glazed windows and sliding patio doors to rear elevation leading out into the garden, two skylights, inset ceiling spot lights, radiator, wooden flooring, door to;

Bedroom Four/Playroom

Double glazed window to rear elevation, laminate flooring, opening to;

Study

Double glazed obscure window to front elevation.

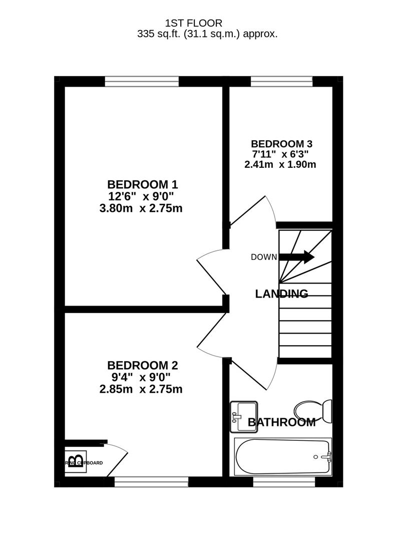
On The First Floor

Landing

Access to loft via hatch which is part boarded with a ladder.

Bedroom One

Double glazed window to rear elevation, radiator.

Bedroom Two

Double glazed window to front elevation, radiator, storage cupboard housing boiler.

Bedroom Three

Double glazed window to rear elevation, radiator, laminate flooring.

Bathroom

Double glazed obscure window to front elevation, bath with shower over, wash hand basin with mixer tap, WC, tiled splash backs.

Outside

To the front and side of the property, there are two off-road parking spaces and gated side access leading to the garden, there is also a useful outside tap. To the rear of the property, the garden is fully enclosed and consists of several areas, including a paved patio seating area, gravelled area with a storage shed, and lawn. There is also outside lighting and double power socket.

Location

The property is located on the outskirts of Cheltenham with local shops, bus services, and good access to the M5 northbound & Cheltenham Town Centre. There are local schools both primary and secondary and an out-of-town shopping centre including Aldi, Sainsburys, and Gallagher Retail Park.

Material Information

Tenure: Freehold.
Council Tax band: B
Local authority and rates: Cheltenham Borough Council - £1747.29 per annum (2025/26)
Electricity supply: Mains
Water supply: Mains
Sewerage: Mains
Heating: Gas Central heating.
Broadband speed: Standard 1 Mbps, Superfast 118 Mbps and Ultrafast 1000 Mbps.
Mobile phone coverage: Vodafone (Likely), O2 (Likely), EE (Limited), and Three (Limited).


Location


Floorplan

Floorplan for River Leys, Swindon Village, Cheltenham Floorplan for River Leys, Swindon Village, Cheltenham Floorplan for River Leys, Swindon Village, Cheltenham

EPC

EPC for River Leys, Swindon Village, Cheltenham

Similar Properties

Salisbury Avenue, Cheltenham
For Sale

Salisbury Avenue, Cheltenham

2 Bed Flat For Sale
Guide price £180,000
Blenheim Square, Cheltenham
Sold STC

Blenheim Square, Cheltenham

4 Bed Terraced House Sold STC
Guide price £300,000
Long Mynd Avenue, Up Hatherley, Cheltenham

Long Mynd Avenue, Up Hatherley, Cheltenham

2 Bed Detached bungalow
Guide price £325,000