The Crescent, Tilsdown, Dursley

3 bedroom Detached house

£375,000

  • 3
  • 1
  • 2

Summary

A well presented three bedroom detached property with some great space. A light and airy living room with bay window, a modern kitchen/diner, two double bedrooms and a generous single. This property also provides a larger than average garden, giving way to a secret garden which can be further landscaped and a log cabin with power and Wifi. We recommend an early viewing to avoid disappointment.

Key Features

  • Detached family home
  • Three bedrooms
  • Separate home office
  • Driveway parking
  • Large garden
  • EPC Rating: D66

Description

Accommodation

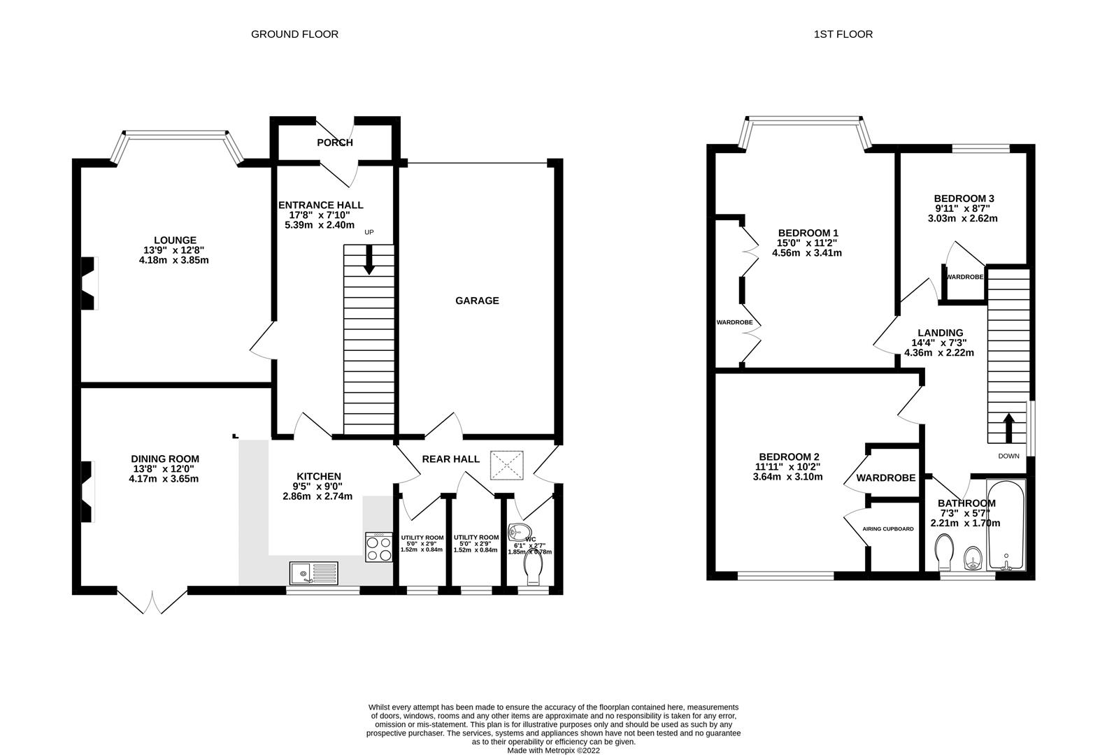
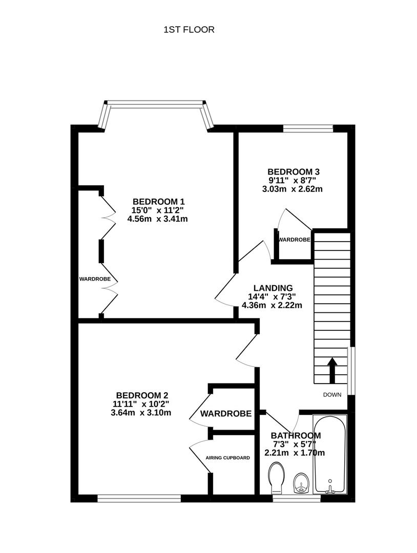
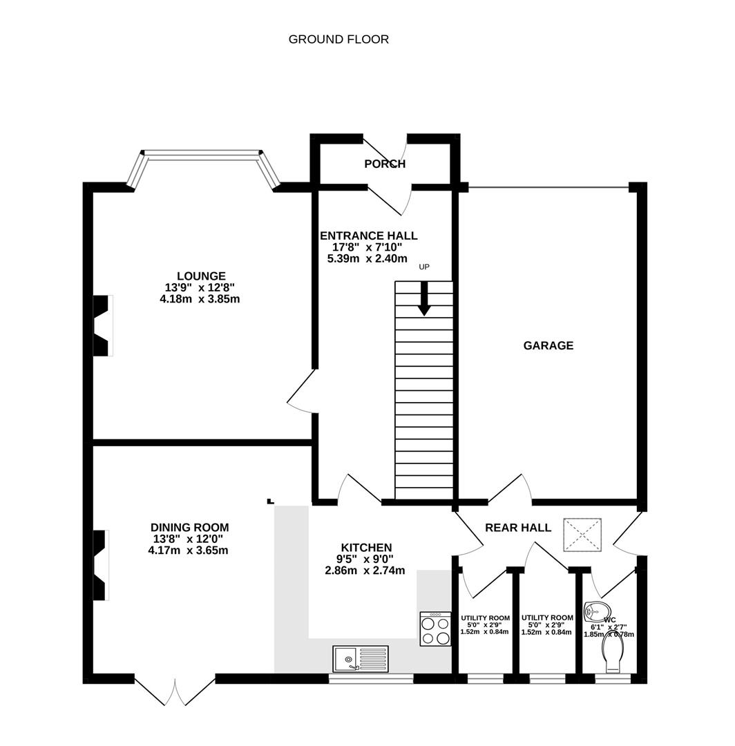
The property is accessed via a porch which in turn leads to the front door. The light and airy hall has doors leading to the living room, kitchen/diner and stairs rising to the first floor. The hall gives access to an under stairs cupboard The living room is generous in size and has a bay window and exposed floorboards. The kitchen/diner has a modern range of wall and base units with wooden worktop over, integrated induction hob with extractor fan and electric oven. There is also an integrated dishwasher and space for a fridge freezer. There is an enamel 1.5 bowl sink. The dining area has patio doors that lead into the garden. There is a useful pantry cupboard in the kitchen, which provides additional storage. Leading on from the kitchen, there are two utility cupboards, one for storage, the other has plumbing for a washing machine, both provide shelves. There is an integral door from the lobby into the single garage and also a rear door leading into the garden. On the first floor, there are three bedrooms, two of which are double. Bedroom One provides an abundance of wardrobe space and a window seat in the bay window, whilst there are double wardrobes in Bedroom Two and views over the rear garden. Bedroom Three is a generous single with views to the front of the property.

Outside

To the front of the property there is a driveway providing off-road parking and gated access to the rear garden. The established South-West facing garden provides a private entertainment space with patio as well as a lawned area, flower and shrub borders and mature trees. The garden gives way to a log cabin, providing home office facilities being fully powered with Wifi to boot. The secret garden beyond the cabin is yet to be landscaped and leads down to a stream at the bottom, marking the boundary. The integral garage is powered and can be accessed from the front of the property and via an internal door.

Location

Cam offers a community feel and provides for most of your shopping requirements by way of a supermarket, two pubs, and national award-winning butchers. There is also a wide range of sports clubs, leisure facilities, and public play areas. Cam has good motorway access by way of the M5, providing good links to Bristol, Gloucester, and Cheltenham. Cam and Dursley train station is nearby offering local services to Bristol, Gloucester, and beyond. There are plenty of primary schools to choose from as there are five in the local area and also Rednock School which offers secondary education and rated 'Good' by Ofsted.

Tenure, Services and Local Authority

Freehold
All mains services are believed to be connected to the property
Stroud District Council, Tax Band D: £1,984.77

Directions

From our office in Cam head South towards Noel Lee Way, at the round about take the second exit on to Cam Pitch (A4135). Follow this road until you reach the second mini roundabout, at this roundabout take the first exit on to Tilsdown (A4135). Follow Tilsdown for 0.1 miles, you will then need to turn left on to The Drive. Follow The Drive round, which will merge into The Crescent. Follow The Crescent, almost to the bottom you will find our property on the left hand side. It will be indicated by a ‘For Sale’ board.


Location


Floorplan

Floorplan for The Crescent, Tilsdown, Dursley Floorplan for The Crescent, Tilsdown, Dursley Floorplan for The Crescent, Tilsdown, Dursley

EPC

EPC for The Crescent, Tilsdown, Dursley

Naylor Powell Estate Agents

Unit C, Barge Arm East, Gloucester Docks, GL1 2DQ

Similar Properties

Rosebery Park, Dursley

Rosebery Park, Dursley

3 Bed Semi-detached house
Guide price £229,950
Cam Pitch, Cam, Dursley

Cam Pitch, Cam, Dursley

3 Bed Detached house
Guide price £309,000
Bailey Way, Dursley

Bailey Way, Dursley

3 Bed Semi-detached house
Guide price £365,000