Ermin Park, Brockworth, Gloucester

3 bedroom Terraced House

£185,000

  • 3
  • 2
  • 1
  • 1,064 sq ft

Summary

CASH BUYERS ONLY – Non-Standard Construction
Offered to the market with no onward chain, this three-bedroom mid-terraced home presents an excellent opportunity for investors or cash buyers. Situated on a quiet residential road, the property is conveniently located close to local schools, shops, and motorway links, making it ideal for families or commuters. The accommodation is arranged over two floors and offers flexible living space, while externally there is off-road parking and a generously sized rear garden.

Key Features

  • CASH BUYERS ONLY as the property is non standard construction
  • Chain free
  • Two double bedrooms and a generous sized single bedroom
  • Large rear garden
  • Off road parking
  • Located close to local amenities, schools and transport links
  • Well presented throughout
  • Gas central heating and double glazing
  • Tewkesbury Borough Council Tax band B - £1,750.10(2025/2026)
  • EPC rating D68

Description

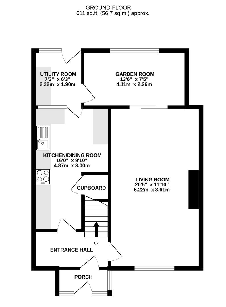
Entrance Porch

Double-glazed windows to front and side elevations, door to front of property, door to;

Entrance Hall

Stairs to the first floor, door to Kitchen/Diner, door to;

Living Room

Double-glazed window to front elevation, radiators, fireplace, sliding door to;

Sun Room

Double-glazed window to rear elevation, radiator, door to;

Utility Room

Double-glazed window to rear elevation, base units with worktops over, space for washing machine, door to rear garden, door to;

Kitchen/Diner

Double-glazed window to utility room, door to utility room, radiator, built-in storage cupboard, matching wall and base units with worktops over, stainless steel one-bowl sink with drainer unit, cooker with four-ring gas hob, and space for under-counter fridge.

On the first floor

Landing

Built-in cupboard, doors to all upstairs accommodations, access to loft via hatch with an integrated ladder and light.

Bedroom One

Double-glazed window to front elevation, radiator, built-in wardrobe.

Bedroom Two

Double-glazed window to rear elevation, radiator.

Bedroom Three

Double-glazed window to front elevation, radiator.

Bathroom

Double-glazed obscure window to rear elevation, WC, handwash basin, shower cubicle.

Outside

To the front of the property is a gravelled area, bin storage, and a paved driveway for two vehicles. To the rear of the property is a large lawn area, a patio with a path to the top of the garden, gate to a public footpath and a shed.

Location

Brockworth is well located between Cheltenham and Gloucester and enjoys a range of local amenities including; Shops, a Library, a Supermarket, Pubs, and Restaurants. There is a selection of Primary and Secondary Schools within the local area and regular bus services. Brockworth business park and shopping park are a short distance from the property and junction 11A of the M5 motorway is within easy access.

Material Information

Construction type - Non-standard Hawksley construction and so only available to purchase by a cash buyer.
Tenure: Freehold.
Council Tax Band: Tax Band B
Local Authority and Rates: Tewkesbury Borough Council; £1,750.10 (2025/2026)
Electricity supply: Mains
Water supply: Mains
Sewerage: Mains
Heating: Gas central heating
Broadband speed: Standard 27 Mpbs, Ultrafast 1000 Mbps.
Mobile phone coverage: EE (Likely), Three (Limited), 02 (Limited) and Vodafone (Limited)


Location


Floorplan

Floorplan for Ermin Park, Brockworth, Gloucester Floorplan for Ermin Park, Brockworth, Gloucester Floorplan for Ermin Park, Brockworth, Gloucester

EPC

EPC for Ermin Park, Brockworth, Gloucester