Sold

Leadon Close, Brockworth, Gloucester

2 bedroom End of terrace house

£235,000

  • 2
  • 1
  • 1
  • 806 sq ft

Summary

Situated in the popular area of Brockworth, this two-bedroom property offers a blend of comfort and convenience. The property features an open-plan kitchen/diner, a living room, and two generously sized bedrooms. Outside the property is a low-maintenance rear garden and a driveway, offering secure off-road parking for at least four vehicles. Viewing is highly advised.

Key Features

  • Off-road parking for four vehicles
  • Well-presented throughout
  • Modern kitchen
  • Two storage sheds with power and light
  • Gas central heating and double glazing
  • Close to local schools and amenities
  • Utility cupboard
  • Two double bedrooms
  • Tewkesbury Borough Council, Band B - £1836.50 per annum (2026/27)
  • EPC rating C71

Description

Entrance Hall

Radiator, tiled flooring, doors to living room and kitchen/dining room, stairs to first floor.

Living Room

Radiator, window to front elevation.

Kitchen/Dining Room

Range of wall and base units with laminate worktop surfaces incorporating one-and-a-half bowl sink, integrated dishwasher, cooker, cooker hood and fridge freezer, tiled flooring, door to garden, window to rear elevation, door to:- utility cupboard with space for freestanding appliances and plumbing for washing machine.

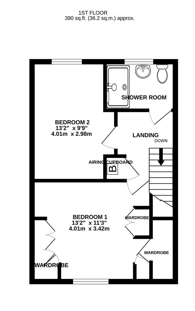
First floor landing

Access to the loft via integrated ladder (boarded & light), radiator, & airing cupboard (housing boiler)

Bedroom One

Large walk-in wardrobe with hanging area and light, several other fitted wardrobes, radiator, and window to front elevation.

Bedroom Two

Radiator, window to rear elevation.

Shower Room

Walk in shower, WC, wash hand basin, radiator, window to rear elevation.

Outside

To the front of the property is a driveway providing off-road parking for at least four vehicles with gated side access to the rear garden. The rear garden is very low maintenance with a large patio area, two storage sheds, both with power and light and another useful brick built store.

Location

Brockworth is well located between Cheltenham and Gloucester and enjoys a range of local amenities including; Shops, a Library, a Supermarket, Pubs, and Restaurants. Junction 11A of the M5 motorway is within easy access.

Material Information

Tenure: Freehold.
Council Tax band: B
Local authority and rates: Tewkesbury Borough Council - £1836.50 per annum (2026/27)
Electricity supply: Mains
Water supply: Mains
Sewerage: Mains
Heating: Gas Central Heating.
Broadband speed: Standard 8Mbps, Ultrafast 1000Mbps
Mobile phone coverage: Vodafone(Likely), O2 (Likely), EE(Likely), and Three (Likely).


Location


Floorplan

Floorplan for Leadon Close, Brockworth, Gloucester Floorplan for Leadon Close, Brockworth, Gloucester Floorplan for Leadon Close, Brockworth, Gloucester

EPC

EPC for Leadon Close, Brockworth, Gloucester