Sold

Martyn Close, Brockworth, Gloucester

3 bedroom Terraced House

£274,000

  • 3
  • 1
  • 2
  • 824 sq ft

Summary

A modern, three-bedroom, semi-detached property located in Coopers Edge providing easy access to local amenities and transport links. Outside is an enclosed, low-maintenance rear garden and off-road parking for two cars. Viewing is highly recommended and the property is offered to the with no onward chain. This would be a great first-time buy or investment with a potential rental figure of £1200 PCM.

Key Features

  • Close to local amenities and transport links
  • Downstairs WC
  • Chain free
  • Off road parking
  • Gas central heating and double glazing
  • Kitchen/dining room
  • En suite shower room
  • Potential rental figure of £1200 PCM
  • Stroud District Council Tax Band C- £1,905.71 per annum (2024/25)
  • EPC rating B82

Description

Entrance Hall

Radiator, door to the living room, laminate flooring, stairs to the first floor.

Living Room

Double-glazed window to front, laminate flooring, radiator, door to;

Kitchen/Dining Room

Double-glazed window and french doors to rear, a range of base and wall units with roll edge work surfaces, inset one-and-a-half bowl sink, integrated double oven and gas hob with extractor fan over, dishwasher, and fridge/freezer, space for washing machine. Cupboard housing wall-mounted boiler, radiator, part tiled walls, tiled flooring, under stairs storage cupboard.

Cloakroom

WC, wash hand basin, part tiled walls, tiled flooring, extractor fan, radiator.

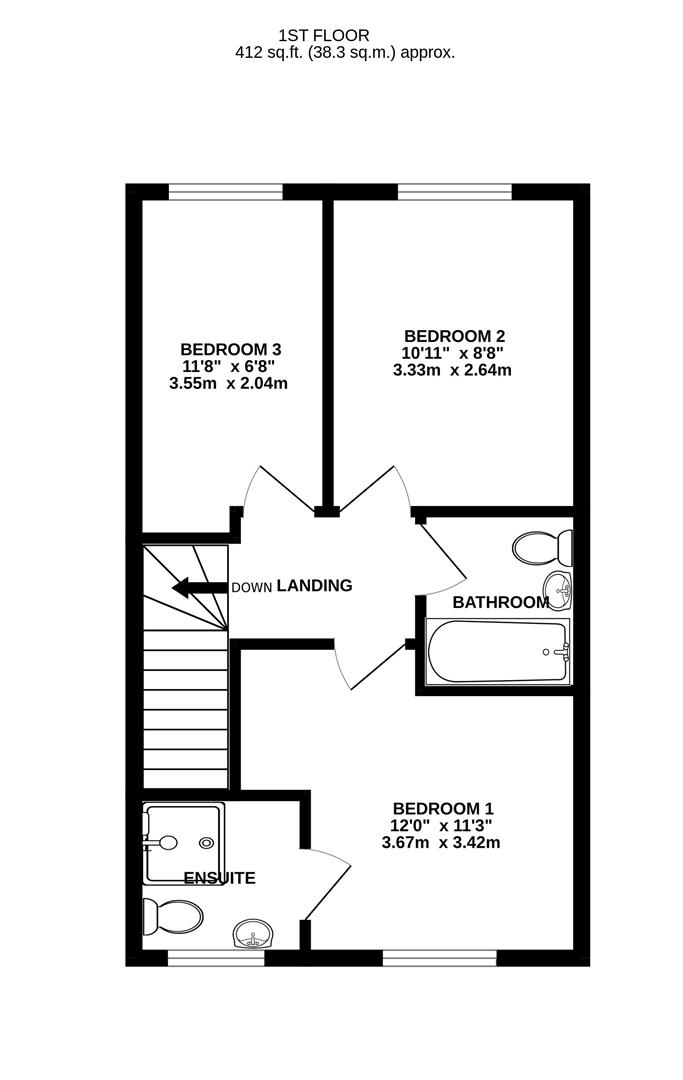
On The First Floor

Landing

Door to all rooms, radiator, access to loft via hatch.

Bedroom One

Double-glazed windows to front, radiator, door to;

En Suite Shower Room

Double-glazed obscure window to front, WC, wash hand basin, shower cubicle, fully tiled walls, heated towel rail, extractor fan.

Bedroom Two

Double-glazed window to rear, radiator

Bedroom Three

Double-glazed window to rear, radiator.

Bathroom

Panelled bath with shower over, WC, wash hand basin, heated towel rail, extractor fan, part tiled walls.

Outside

To the front of the property is off-road parking for two cars. The rear garden is partly paved, with an area of lawn, a further decked area, flower beds, and gated rear access.

Location

The property is situated within close proximity of a sports field, astroturf, and local football club as well as Coopers Edge School. Brockworth is conveniently located between Gloucester and Cheltenham and enjoys a further range of local amenities within Brockworth business park including; Tescos supermarket, pub, and a variety of other eateries such as Costa, Subway, Greggs, and Domino's. Junction 11A of the M5 motorway is within easy access as well as Gloucester train station which is situated within 4.9 miles away.

Material Information

Tenure: Freehold.
Council Tax Band: Tax Band C
Local Authority and Rates: Stroud District Council; £1,905.71 (2024/2025)
Electricity supply: Mains
Water supply: Mains
Sewerage: Mains
Heating: Gas central heating
Broadband speed: Basic 4 Mbps, Superfast 80 Mbps, Ultrafast 1000 Mbps
Mobile phone coverage: EE (Likely), O2 (Likely), Three (Likely) and Vodafone (Likely).


Location


Floorplan

Floorplan for Martyn Close, Brockworth, Gloucester Floorplan for Martyn Close, Brockworth, Gloucester Floorplan for Martyn Close, Brockworth, Gloucester

EPC

EPC for Martyn Close, Brockworth, Gloucester

Similar Properties

Rookery Road, Innsworth, Gloucester
For Sale

Rookery Road, Innsworth, Gloucester

2 Bed Terraced House For Sale
Guide price £230,000
Insley Gardens, Hucclecote, Gloucester
For Sale

Insley Gardens, Hucclecote, Gloucester

3 Bed Terraced House For Sale
Guide price £275,000
Laynes Road, Hucclecote, Gloucester
Sold STC

Laynes Road, Hucclecote, Gloucester

2 Bed Semi-detached bungalow Sold STC
Guide price £375,000