Sold

Brunel Road, Cam

4 bedroom Detached house

£440,000

  • 4
  • 2
  • 2

Summary

Situated in the sought after Taylor Wimpey development is this beautiful family home. The accommodation is arranged over two floors and comprises of three double bedrooms, master with en-suite and one single bedroom. The open plan kitchen/diner boasts light and airy family living at its best, with a recent extension benefitting from bi-fold doors and skylights, it is an ideal place to entertain. The good size lounge has a bay window, creating a warm feel. The low maintenance garden is finished with artificial grass and decking, as well as a detached garage with both side access and an up and over door. There is off road parking for approximately three vehicles. The property is still under the NHBC warranty.

Key Features

  • Detached
  • Four bedrooms
  • Still under the NHBC warranty
  • Garage and parking for three cars
  • Extended sun room
  • EPC Rating: B84

Description

Accommodation

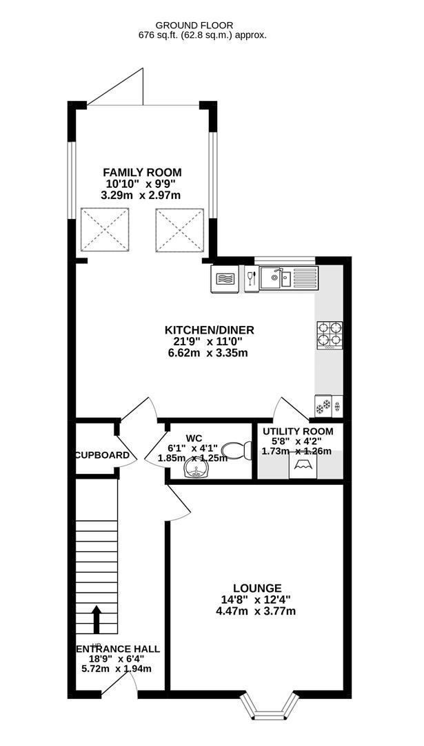
The property is accessed via a large entrance hall that creates an open feel, complimenting the property. The hallway has an under stairs cupboard for storage. Off the entrance hall you will find the open plan kitchen/diner, with the recent addition of a sun/family room. The kitchen is finished to a high standard with a range of wall and base units, an eye-level oven, gas hob, dishwasher and fridge/freezer, the utility space off the kitchen also has wall and base units with a washing machine, there is plenty of room for a dining table within the kitchen. The recent extension benefits from bi-fold doors and two skylights creating a lot of natural light. The doors open on to the rear garden. The lounge has a beautiful bay window and is a good size. The ground floor is finished with a W/C, hand basin and heated towel rail. Upstairs you have three good size double bedrooms and one single bedroom, the master has an en-suite shower room. The family bathroom has a low level W/C, hand basin, bath with shower over and heated towel rail. The landing space is well-proportioned and handy for extra storage if required.

Outside

To the side of the house, you have a detached garage and parking in front that can fit up to three cars. The front of the property has a beautiful slate chipping area with walkway leading to the front door. The current vendors also have a stunning blossom tree. The rear garden is fully enclosed and can be accessed either from the house or via two different side access gates, the garden is mostly laid to artificial grass with a decking area, ideal for alfresco dining. The door into the detached garage comes off the garden.

Location

Cam offers a community feel and provides for most of your shopping requirements by way of a supermarket, two pubs, and national award-winning butchers. There is also a wide range of sports clubs, leisure facilities, and public play areas. Cam has good motorway access by way of the M5, providing good links to Bristol, Gloucester, and Cheltenham. Cam and Dursley train station is nearby offering local services to Bristol, Gloucester, and beyond. There are plenty of primary schools to choose from as there are five in the local area and also Rednock School which offers secondary education and rated 'Good' by Ofsted.

Tenure, Services and Local Authority

Freehold
All mains services are believed to be connected to the property
Stroud District Council, Tax Band D: £1,984.77
Management fee: £200 per annum approximately for communal areas.

Directions

From our office in Cam, head South towards Noel Lee Way, at the roundabout turn right (third exit) on to High Street (A4135). After 0.8 miles turn right on to Box Road, then 0.1 miles from the junction turn left on to Brunel Road. Follow the road round until you reach the end of the cul-de-sac, you will then find the property on the right hand side as indicated by the 'For Sale' board.


Location


Floorplan

Floorplan for Brunel Road, Cam Floorplan for Brunel Road, Cam Floorplan for Brunel Road, Cam

EPC

EPC for Brunel Road, Cam

Video Tour

Invalid video URL provided.

Naylor Powell Estate Agents

Unit C, Barge Arm East, Gloucester Docks, GL1 2DQ

Similar Properties

Bailey Way, Dursley

Bailey Way, Dursley

3 Bed Semi-detached house
Guide price £365,000
Redwing Gate, Cam, Dursley

Redwing Gate, Cam, Dursley

4 Bed Detached house
Guide price £460,000
The Quarry, Cam, Dursley

The Quarry, Cam, Dursley

4 Bed Detached house
Guide price £475,000