Howard Street, Gloucester

5 bedroom Semi-detached house for sale

£260,000

  • 5
  • 4
  • 3

Summary

Offered to the market with no onward chain, this substantial sized double bay fronted semi-detached property is located on the popular road of Howard Street in Tredworth. Providing versatile & flexible living accommodation throughout, the property is in need of cosmetic modernisation. viewing is highly advised to consider what this home has to offer.

Key Features

  • No onward chain
  • Substantial sized five bedroom family home across three floors
  • Generous & flexible living accommodation throughout
  • In need of modernisation
  • Enclosed low maintenance rear garden
  • Potential rental income of £1,100 pcm
  • EPC rating F35
  • Gloucester City Council - Tax Band A (£1,565.44 per annum) 2026/2027.

Description

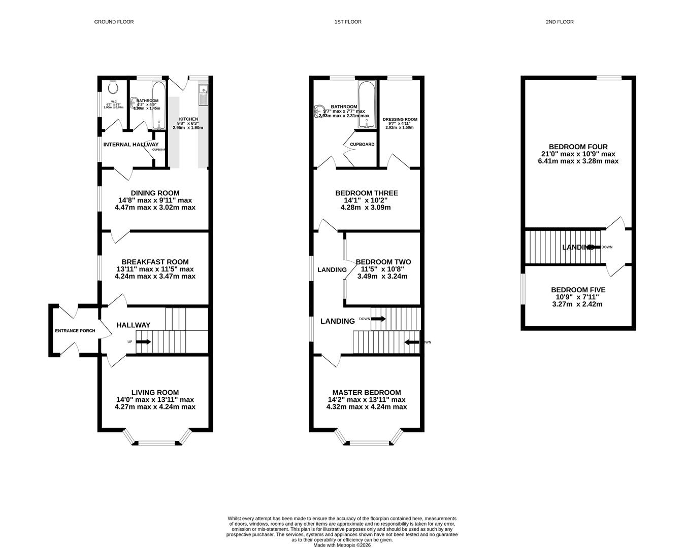
Entrance Porch

Spacious porch provides access to the main hallway of the home and to the side of the property.

Hallway

The hallway provides access to the living room, breakfast room and to a large built-in storage cupboard located beneath the stairwell.

Living Room

Bay fronted living room with window overlooking the front aspect.

Breakfast Room

Generous sized room offers the flexibility to be used as a second living room if required. Access is provided to the dining area with window overlooking the side aspect.

Dining Room / Kitchen

The spacious dining area opens through to the kitchen and provides access to an internal hallway. Window overlooks the side aspect.

Internal Hallway

Hallway, with window to the side aspect, provides access to a bathroom, separate w.c and a built-in storage cupboard.

Downstairs W.C

Comprises w.c and window with frosted glass overlooking the side aspect.

Bathroom

White suite bathroom comprises wash hand basin, bath with shower attachment over and window with frosted glass overlooking the rear aspect.

Landing

Light and airy landing, with two windows overlooking the side aspect, provides access to three bedroom and to a second stairwell leading to the second floor of the property.

Bedroom One

Double bedroom with built-in wardrobe and bay window overlooking the front aspect.

Bedroom Two

Double bedroom with window into the landing area.

Bedroom Three

Double bedroom with window overlooking the side aspect and access provide to the bathroom.

Bathroom

Comprises w.c, wash hand basin, bath with shower attachment from the tap, built-in storage cupboard and window with frosted glass overlooking the rear aspect.

Second Floor Landing

Landing area providing access to two further bedrooms.

Bedroom Four

Double bedroom with velux window overlooking the rear aspect.

Bedroom Five

Bedroom with velux window overlooking the side aspect.

Outside

Externally the property boasts a generous sized low maintenance rear garden enclosed with fenced and walled borders.

Location

Situated on the outskirts of Gloucester City Centre, the property appeals to a wide range of potential purchasers having access to both primary and secondary education, a range of amenities, multi-sport court, playing grounds, bus links alongside being a short distance from the newly developed Gloucester Quays providing various restaurants, bars and twelve screen cinema.

Material Information

Tenure: Freehold.
Local Authority and Rates: Gloucester City Council - Tax Band A (£1,565.44 per annum) 2026/2027.
Electricity supply: Mains.
Water supply: Mains.
Sewerage: Mains.
Heating: Gas central heating.
Broadband speed: Basic 7 Mbps, Superfast 49 Mbps Highest available download speed.
Mobile phone coverage: EE, Three, Vodafone, O2.


Location


Floorplan

Floorplan for Howard Street, Gloucester

EPC

EPC for Howard Street, Gloucester

Similar Properties

Gloucester Street, Newent
For Sale

Gloucester Street, Newent

2 Bed Detached bungalow For Sale
Guide price £275,000
Whitefriars Apartments, Market Parade, Gloucester
For Sale

Whitefriars Apartments, Market Parade, Gloucester

2 Bed Apartment For Sale
Guide price £265,000
Foley Road, Newent
For Sale

Foley Road, Newent

3 Bed Semi-detached house For Sale
Guide price £269,950