New Street, Gloucester

2 bedroom Terraced House for sale

£170,000

  • 2
  • 2
  • 1
  • 679 sq ft

Summary

Located within a short distance from the historic Gloucester Docks, this generous sized two double bedroom terraced home is offered to the market. Benefitting from two reception rooms and a large enclosed rear garden, the property makes for an ideal first time purchase or investment opportunity with a potential rental income of £975 pcm.

Key Features

  • Two double bedroom terraced home
  • Immaculately presented throughout
  • Generous living accommodation with two reception rooms
  • Space & private enclosed rear garden
  • Situated within close proximity to the popular Gloucester Quays development
  • Potential rental income of £975 pcm
  • EPC rating D58
  • Gloucester City Council - Tax Band A (£1,565.44 per annum) 2026/2027

Description

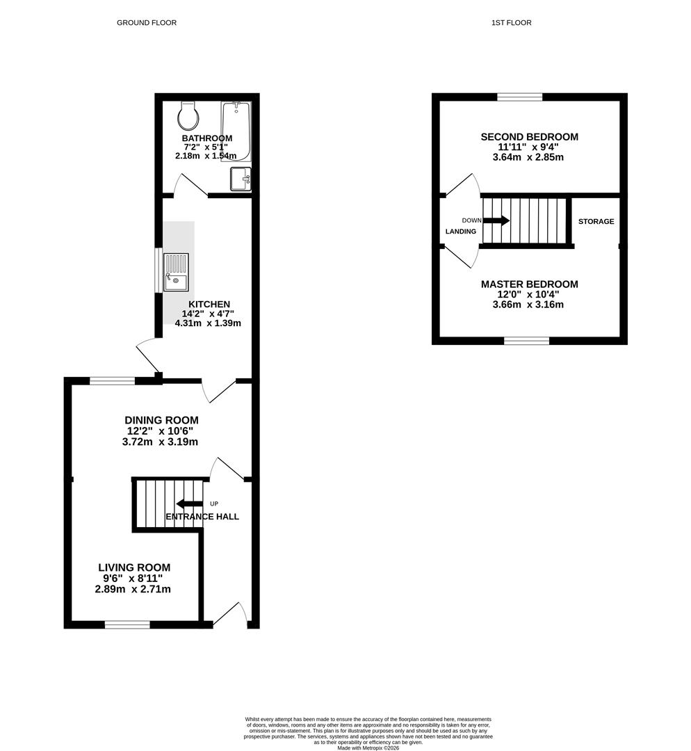
Entrance Hallway

Hallway provides access to the dining room and stairwell leading to the first floor.

Dining Room

Light and airy dining room with window overlooking the rear aspect. Access is provided to the kitchen and the room opens through to the living room.

Living Room

Cosy living area with window overlooking the front aspect.

Kitchen

Galley style kitchen with ample worktop and storage space with plumbing for an automatic washing machine below alongside space for an under counter fridge. Window overlooks the side aspect with door opening to the rear garden. Access is also provided to the bathroom to the rear.

Bathroom

White suite bathroom comprises w.c, wash hand basin, bath with shower attachment over and window with frosted glass overlooking the rear garden.

Landing

Access is provided to both double bedrooms.

Bedroom One

Double bedroom with window overlooking the front aspect and convenient wardrobe space located above the stairwell.

Bedroom Two

Double bedroom with window overlooking the rear aspect.

Outside

To the rear, the property boasts a large private rear garden enclosed with fenced borders. Patio area provides an ideal seating area leading on to the lawned area. Outbuildings to the rear provide ideal storage space.

Location

A popular location in the historic City of Gloucester, with easy access to the M5, New Street is ideally placed for local amenities including primary, secondary and grammar schooling. A short distance away is the newly developed Gloucester Quays, where a range of retail outlets can be found alongside restaurants, bars and cinema whilst the city centre is home to the historic Cathedral, various listed buildings, transport links to include the newly developed bus station and train station providing direct links to London Paddington. Robinswood Hill Country Park is half a mile from the property and open countryside approximately a mile away.

Material Information

Tenure: Freehold.
Local Authority and Rates: Gloucester City Council - Tax Band A (£1,565.44 per annum) 2026/2027.
Electricity supply: Mains.
Water supply: Mains.
Sewerage: Mains.
Heating: Gas central heating.
Broadband speed: Standard 11Mbps, Superfast 80 Mbps, Ultrafast 1000Mbps -Highest available download speed
Mobile phone coverage: EE, Vodafone, Three, O2.


Location


Floorplan

Floorplan for New Street, Gloucester

EPC

EPC for New Street, Gloucester

Similar Properties

Castlemeads Court, Westgate Street, Gloucester
For Sale

Castlemeads Court, Westgate Street, Gloucester

2 Bed Retirement property For Sale
Guide price £100,000
Perry Close, Newent
For Sale

Perry Close, Newent

2 Bed Terraced House For Sale
Guide price £209,950
Eaton Cottage, Church Road, Longhope, Gloucestersh
For Sale

Eaton Cottage, Church Road, Longhope, Gloucestersh

4 Bed Detached house For Sale
Guide price £495,000