Sydenham Terrace, Gloucester

1 bedroom End of terrace house Sold STC

£240,000

  • 1
  • 3
  • 2

Summary

***COMMERCIAL PROPERTY***

Unique commercial proposition situated in the popular residential area of Linden. A fish & chip shop for almost 100 years, the shop unit is setup ready to be continued to be used as such if required with a one bedroom apartment above. The property has been completely renovated throughout ready for the next owner to continue the success they have had in the area for many years. Viewing is highly advised.

Key Features

  • Commercial premises & one bedroom apartment
  • Historic fish & chip shop with appliances readily installed
  • Fantastic investment opportunity
  • Potential combined rental income of £20,000 per annum
  • Situated in the popular residential location of Linden
  • EPC rating D76
  • Gloucester City Council - Business Rates £3,100 per annum
  • Recently refurbished throughout

Description

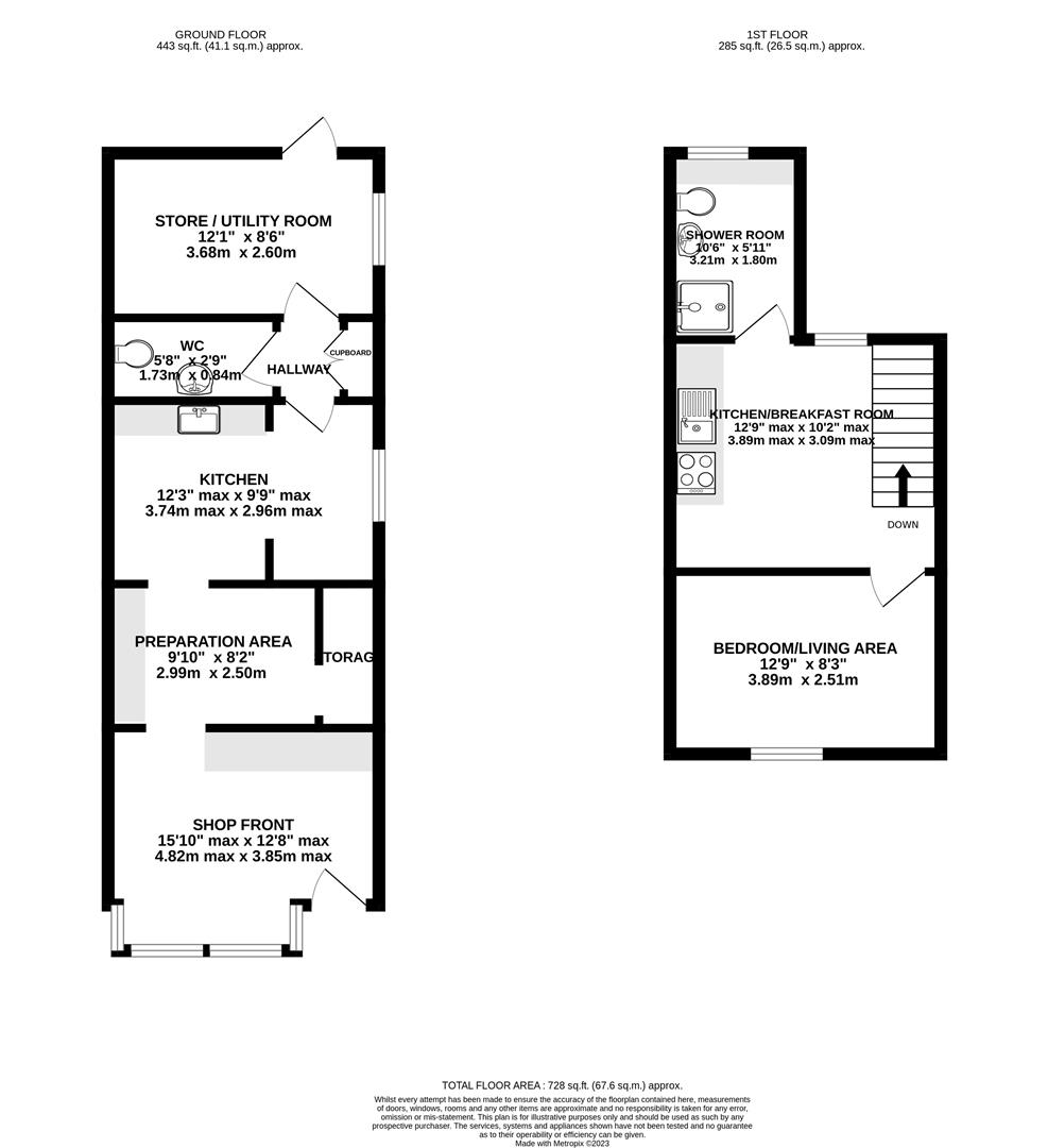
Ground Floor - Shop

The ground floor of the property consists of the shop premises itself. A working fish & chip shop for almost 100 years the shop space is currently fitted out as such ready for prospective buyers to instantly make use of the shop itself. The bay fronted shop front consists of the fish & chip shop serving area with space for customers also. Behind is additional facilities including a preparation area, kitchen, w.c and additional storage room to the rear. This room in turn opens through to a rear courtyard area.

First Floor Apartment

Accessed via the side of the building, stairwell leads to the recently refurbished apartment located above the shop itself. The apartment consists of a spacious kitchen & dining area, bedroom and white suite shower room comprising of w.c, wash hand basin and shower cubicle.

Outside

To the rear of the building, a secure gated area is accessed from Stanley Road providing an ideal area for bin or bike storage. The shop is accessed via the front whilst the apartment is accessed via the side of the property.

Location

A popular location in the historic City of Gloucester, with easy access to the M5, Sydenham Terrace is ideally placed for local amenities including primary, secondary and grammar schooling. A short distance away is the newly developed Gloucester Quays, where a range of retail outlets can be found alongside restaurants, bars and cinema whilst the city centre is home to the historic Cathedral, various listed buildings, transport links to include the newly developed bus station and train station providing direct links to London Paddington. Robinswood Hill Country Park is half a mile from the property and open countryside approximately a mile away.

Material Information

Tenure: Freehold commercial premises.
Local Authority and Rates: Gloucester City Council - Business Rates £3,100 per annum.
Electricity supply: Mains.
Water supply: Mains.
Sewerage: Mains.
Heating: Gas central heating.
Broadband speed: Standard 12 Mbps, Superfast 66 Mbps, Ultrafast 1000 Mbps download speed.
Mobile phone coverage: EE, Three, O2, Vodafone.


Location


Floorplan

Floorplan for Sydenham Terrace, Gloucester

Similar Properties

Maurice Shill Close, Great Oldbury, Stonehouse
For Sale

Maurice Shill Close, Great Oldbury, Stonehouse

3 Bed Semi-detached house For Sale
Guide price £315,000
Overbury Road, Gloucester
For Sale

Overbury Road, Gloucester

2 Bed End of terrace house For Sale
Guide price £205,000
Bradfords Close, Newent
For Sale

Bradfords Close, Newent

2 Bed Semi-detached house For Sale
Guide price £239,950