Dinglewell, Hucclecote, Gloucester

3 bedroom Semi-detached house for sale

£365,000

  • 3
  • 2
  • 1
  • 969 sq ft

Summary

Located in the heart of Hucclecote with an array of local amenities is this beautifully presented family home. Combining many of it's original period aspects with modern conveniences. Outside is a driveway, garage, and a generous 100-foot-long rear garden. Viewing is highly recommended.

Key Features

  • Situated in a highly sought-after and popular location
  • 100ft long south facing garden
  • Beautifully presented family home
  • Close to local schools and amenities
  • Garage with power and lighting
  • Gas central heating and double glazing
  • Good transport links
  • Log burner
  • Gloucester City Council - £2,087.26 per annum (2026/27)
  • EPC rating D63

Description

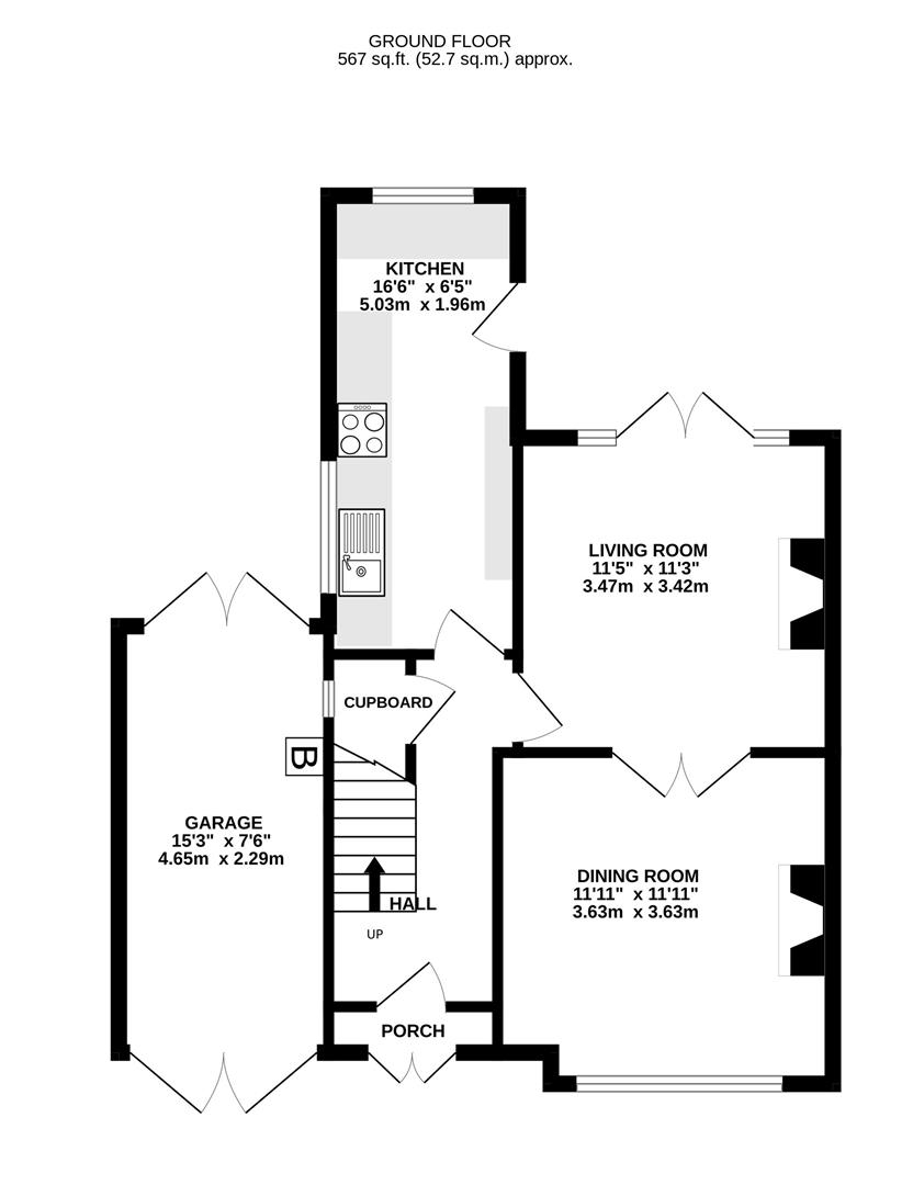
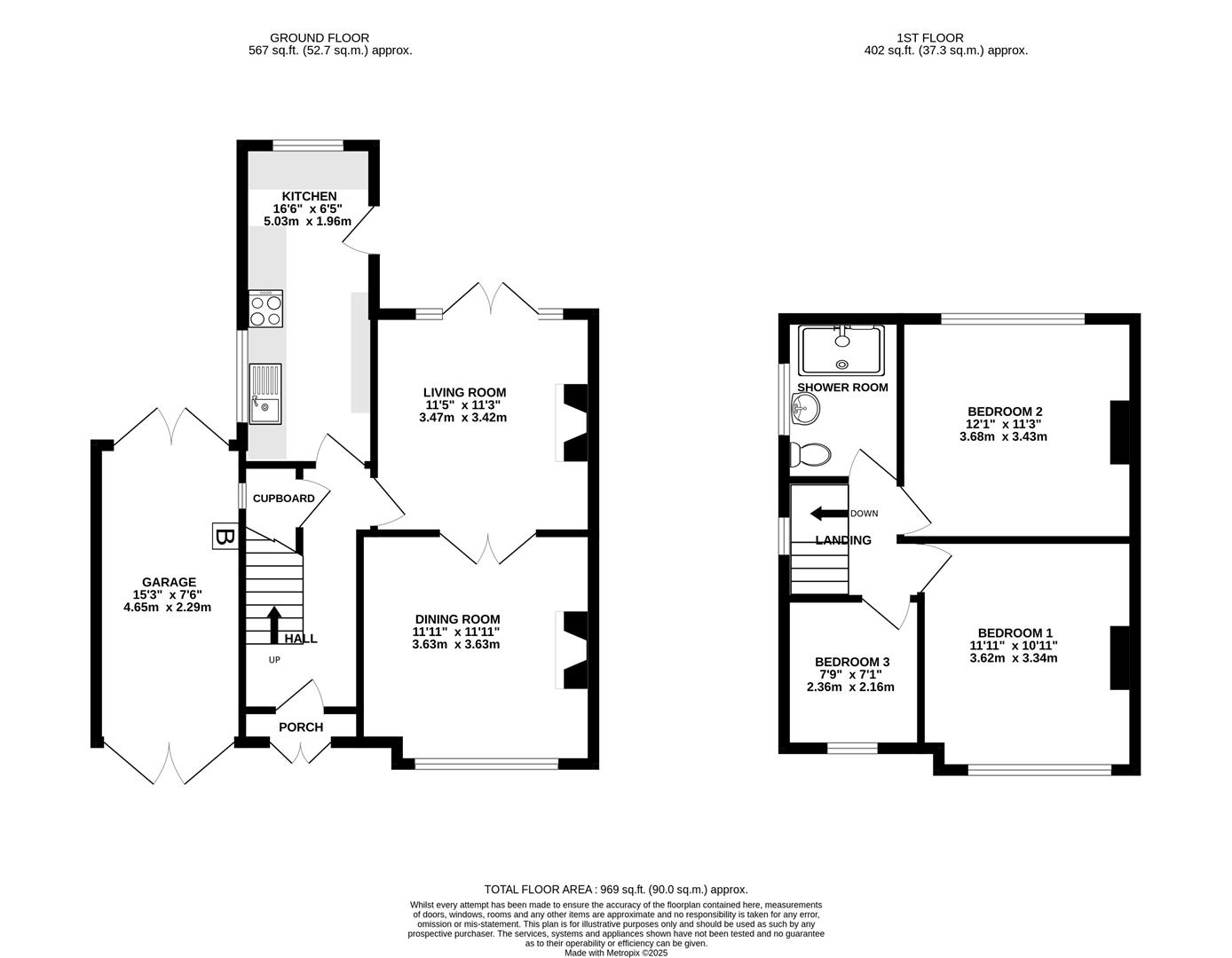
Entrance Porch

French doors leading into the porch, door to;

Hall

Stairs to the first floor, understairs storage cupboard, door to the living room and kitchen, radiator.

Living Room

Double glazed french doors to the rear, radiator, log burner, double doors to

Dining Room

Double-glazed window to the front elevation, fireplace with inset gas fire, radiator.

Kitchen

Double glazed windows to the side and rear elevations, a range of matching wall and base units with work surface over, inset 1 bowl stainless steel sink and drainer unit, electric oven with sperate electric hob, integral microwave, space for a fridge, freezer, washing machine, and dishwasher. Door to garden.

On The First Floor

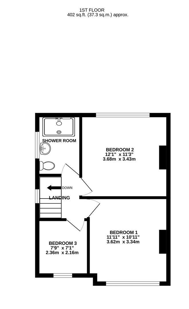
Landing

Double-glazed window to the side elevation, access to the part boarded loft, doors to all first-floor accommodation.

Bedroom One

Double-glazed window to the rear elevation, radiator.

Bedroom Two

Double-glazed window to the front elevation, radiator.

Bedroom Three

Doble-glazed window to the front elevation, radiator.

Shower Room

Obscure double-glazed window to the side elevation, large shower cubicle, WC, wash hand basin, heated towel rail.

Garage

Barn style door to the front and rear, power and lighting, wall-mounted combi boiler.

Outside

To the front of the property, you have a block-paved driveway providing off-road parking. To the rear of the property you have a beautiful 100-foot-long garden mainly laid to lawn with a kitchen garden area to the rear, greenhouse, and storage shed. There are also a variety of flowers and shrub borders.

Location

The popular suburb of Hucclecote has lots to offer with an array of shops, transport links, and schools. Various local amenities include the 'Good' Ofsted-rated local Dinglewell Junior School as well as access to several secondary and grammar schools located within the city. A short distance away is access to the M5, providing ideal links to Birmingham and Bristol, while a direct line to London Paddington can be located at Gloucester Station. There are also regular bus services to both Cheltenham and Gloucester. The immediate locality offers various walks and open spaces within arguably one of Gloucester's most desirable established residential areas. Access to the Countryside is a short walk or cycle ride away, as well as a children's play area, Hucclecote Green, and meadows within close proximity.

Material Information

Tenure: Freehold.
Council Tax band: C
Local authority and rates: Gloucester City Council - £2,087.26 per annum (2026/27)
Electricity supply: Mains
Water supply: Mains
Sewerage: Mains
Heating: Gas Central heating.
Broadband speed: Standard 18 Mbps and Superfast 65 Mbps and Ultrafast 1000 Mbps
Mobile phone coverage: Vodafone (Likely), O2 (Likely), EE (Likely), and Three (Likely).


Location


Floorplan

Floorplan for Dinglewell, Hucclecote, Gloucester Floorplan for Dinglewell, Hucclecote, Gloucester Floorplan for Dinglewell, Hucclecote, Gloucester

EPC

EPC for Dinglewell, Hucclecote, Gloucester