Glebe Road, Newent

4 bedroom End of terrace house for sale

£299,950

  • 4
  • 2
  • 2
  • 1,577 sq ft

Summary

A deceptively spacious, four bedroom family home with versatile living accommodation, off road parking, low maintenance gardens and located within close walking distance of local amenities.

Key Features

  • Four bedroom family home
  • En-suite to master bedroom
  • Off road parking
  • Private rear garden
  • Located in market town
  • Forest of Dean Council tax band B (£1878.47 2025/26)
  • EPC C72

Description

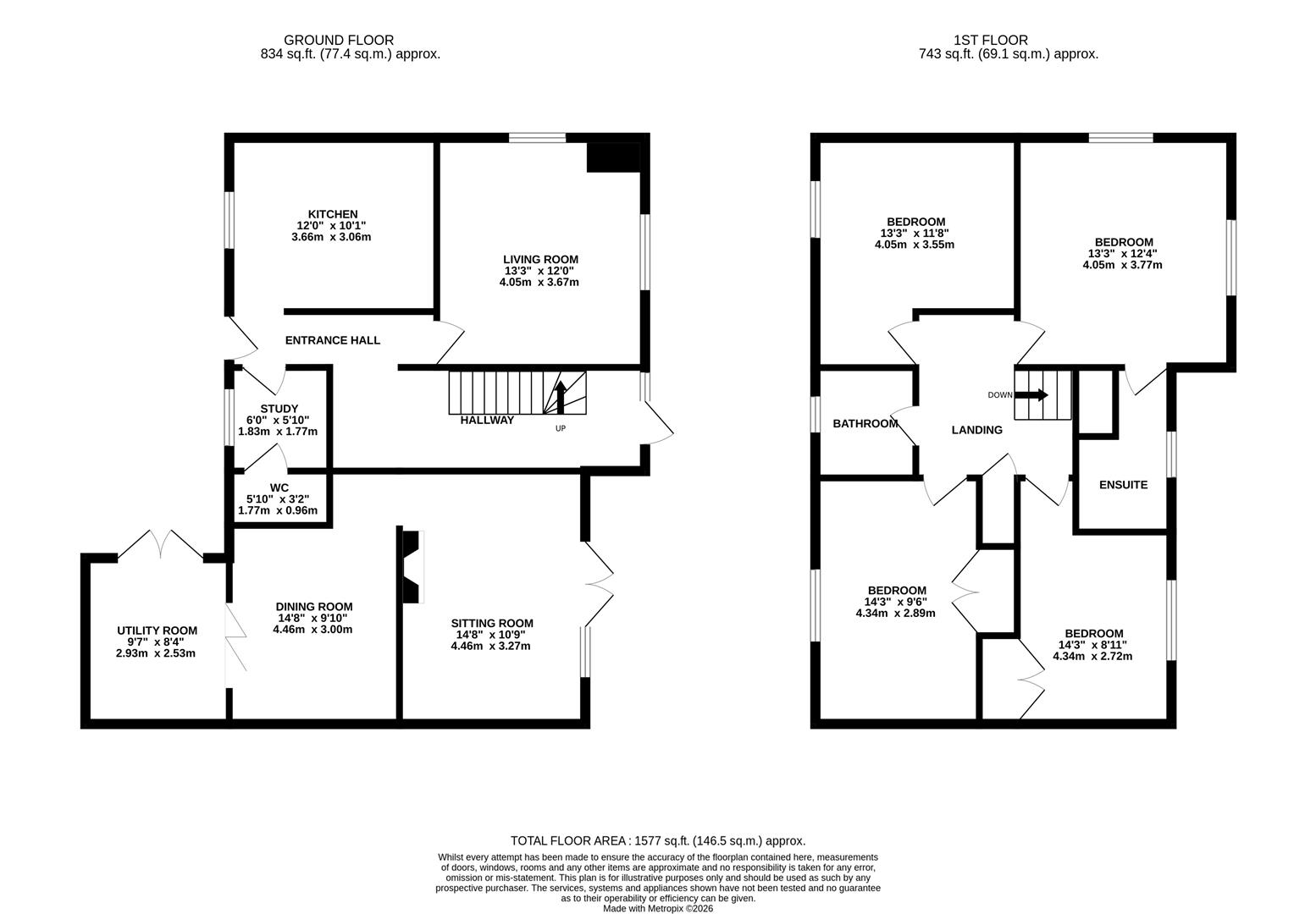
Entrance Hall

Cloaks hanging space and stairs leading up to first floor.

Living Room

Generously sized living room with decorative fireplace and windows to both the front and side aspect.

Kitchen

Well maintained kitchen with a range of floor and eye level units along with integrated appliances to include stainless steel sink with drainer, fridge along with an oven with four ring hob. Window to rear aspect.

Dining Room

Spacious dining room with doors leading into the utility room.

Sitting Room

Sitting room boasts wooden floors throughout along with French doors leading out to the patio

Utility Room

Utility room to provide extra cupboard space along with space for a washing machine and dryer. French doors leading out.

Study

Window to rear aspect.

WC

White suite comprising WC and hand wash basin.

Bedroom One

Double bedroom with windows to both the front and side aspect of the property.

En-suite

Fully tiled en-suite boasting a white suite comprising bath, WC and hand wash basin. Frosted window to front aspect

Bedroom Two

Double bedroom with built in wardrobes. Window to rear aspect.

Bedroom Three

Double bedroom with a window to rear aspect.

Bedroom Four

Double bedroom with built in wardrobes. Window to front aspect.

Bathroom

White suite comprising bath with electric overhead shower, WC and hand wash basin. Frosted window to rear aspect

Outside

To the front of the property is a paved driveway with parking for one vehicle and steps leading down toward the front entrance. The rear of the property has a patioed area suitable for alfresco dining along with a small lawned area.

Location

Newent originally called Noent is a small market town about 8 miles north west of Gloucester, on the northern edge of the Forest of Dean. The town includes a half-timbered market house, plus other houses of historical nature and Newent Lake a large picturesque lake in the centre of the town, originally part of the Newent Court Estate. Newent is served by three schools, doctors’ surgery and dentist, Sports & Leisure Centre. Excellent motorway links to the M50 & M5.

Material Information

Tenure: Freehold
Council tax band: B
Local authority and rates: Forest of Dean District Council - £1,970.01 (2026/27)
Electricity supply: Mains
Water supply: Mains
Sewerage: Mains
Heating: Gas
Broadband speed: Basic 18 Mbps, Superfast 80 Mbps
Mobile phone coverage: EE, Vodaphone, O2, Three


Location


Floorplan

Floorplan for Glebe Road, Newent

EPC

EPC for Glebe Road, Newent