Aldergate Terrace, Aldergate Street, Stonehouse

3 bedroom End of terrace house

£289,950

  • 3
  • 1
  • 1
  • 899 sq ft

Summary

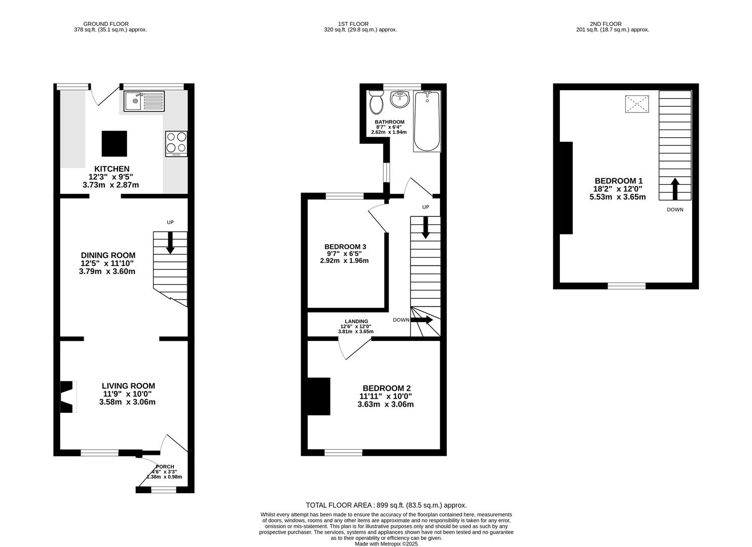
An end-terrace, three bedroom property located in the ever popular Aldergate Street. The property is situated within walking distance to Town Centre and train station, giving easy commutable access to London. The property boasts character features throughout and is a great blend of modern and characterful living. On the ground floor is an open plan dining room/living room with kitchen providing access to the rear garden. The first floor provides two bedrooms and a bathroom and the second floor benefits from a master bedroom with views. The rear garden is fully enclosed and laid to lawn with a patio space. Permit parking is available, subject to further charge and availability.

Key Features

  • End terrace town house
  • Three bedrooms
  • Open plan living room/diner
  • Modernised kitchen with door to rear garden
  • Tastefully decorated throughout
  • Enclosed rear garden with side access
  • Permit parking can be available subject to additional charge and availability
  • Freehold
  • Council tax band B (£1,883.49)
  • EPC rating D65

Description

Porch

uPVC door to porch, uPVC door to living room and uPVC double-glazed window to front elevation.

Living Room

uPVC double-glazed window to front elevation. Feature fireplace. Access to dining room. Radiator.

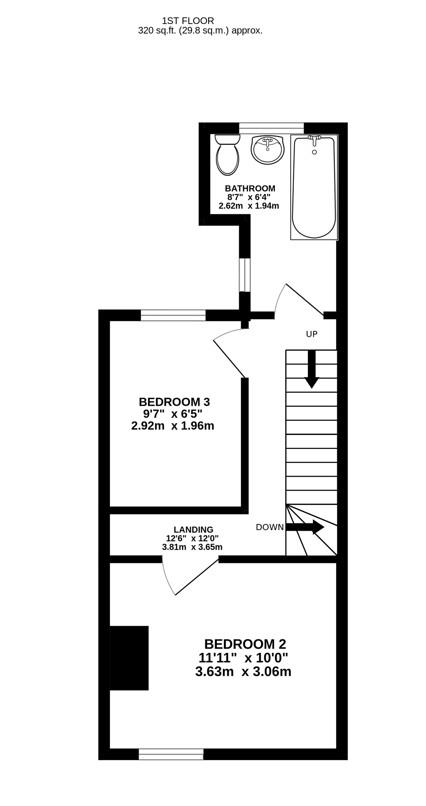
Dining Room

Access to living room, kitchen and stairs rising to the first floor. Radiator.

Kitchen

Two uPVC double-glazed windows to rear elevation and uPVC door to rear garden. Range of wall and base units with appliances to include sink with mixer tap and drainer, four ring induction hob, oven and integrated dishwasher. There is space for a washing machine and freestanding fridge/freezer. Radiator.

Bedroom One

uPVC double-glazed window to front elevation and double-glazed Velux window to rear elevation. Exposed brickwork feature fireplace. Radiator.

Bedroom Two

uPVC double-glazed window to front elevation. Radiator.

Bedroom Three

uPVC double-glazed window to rear elevation. Radiator.

Bathroom

uPVC double-glazed window to rear elevation and uPVC double-glazed window to side elevation. Low-level WC, wash hand basin and bath with shower over. Heated towel rail.

Outside

The front of the property benefits from a shared courtyard area and side access to the garden. The rear garden is enclosed and mostly laid to lawn with a patio space. At the rear, there is a gravelled area that is currently utilised as a bin store and storage shed.

Location

The property is located in Stonehouse town and is a short drive from both Stroud and Gloucester. Local facilities in the town include a Co-op with a post office, restaurants, a variety of shops, a building society, primary and secondary schools. Stonehouse is an ideal location for commuting and also benefits from a railway station which has regular services to London and Cheltenham as well as regular bus services. Junction 13 of the M5 motorway, is approximately two miles away, providing easy access to Gloucester, Bristol and Cheltenham.

Material Information

Tenure: Freehold.
Council tax band: B.
Local authority and rates: Stroud District Council - £1,883.49 (2025/26).
Electricity supply: mains.
Water supply: mains.
Sewerage: mains.
Heating: gas central.
Broadband speed: 17 Mbps (basic), 80 Mbps (superfast) and 10,000 Mbps (ultrafast).
Mobile phone coverage: EE, Three, O2 and Vodafone.

Agents Note

Number 9 and number 11 have right of access across the rear garden to use the side gate.


Location


Floorplan

Floorplan for Aldergate Terrace, Aldergate Street, Stonehouse Floorplan for Aldergate Terrace, Aldergate Street, Stonehouse Floorplan for Aldergate Terrace, Aldergate Street, Stonehouse Floorplan for Aldergate Terrace, Aldergate Street, Stonehouse

EPC

EPC for Aldergate Terrace, Aldergate Street, Stonehouse

Similar Properties

Thomas Tudor Way, Great Oldbury, Stonehouse
For Sale

Thomas Tudor Way, Great Oldbury, Stonehouse

3 Bed Semi-detached house For Sale
Guide price £300,000
Great Oldbury Drive, Great Oldbury, Stonehouse
For Sale

Great Oldbury Drive, Great Oldbury, Stonehouse

3 Bed Detached house For Sale
Guide price OIRO £449,950
Midland Road, Stonehouse
For Sale

Midland Road, Stonehouse

2 Bed Semi-detached house For Sale
Guide price £250,000