Cedar Gardens, Stonehouse

2 bedroom Semi-detached house

£210,000

  • 2
  • 1
  • 1

Summary

A two bedroom semi-detached property situated within a popular area of Stonehouse. The property briefly comprises; kitchen/diner, living room, two double bedrooms and a bathroom. There is a driveway to the rear with parking for two vehicles and low maintenance front and rear garden, both fully enclosed. The rear garden also boasts a wooden garage structure. The property is being offered to the market chain free and is ideal for a first-time buyer or buy-to-let investor.

Key Features

  • Semi-detached house
  • Two double bedrooms
  • Kitchen/diner
  • Enclosed front and rear garden
  • Driveway parking for two vehicles
  • Close to local amenities
  • Chain free
  • Freehold
  • Council tax band B (£1,714.12)
  • EPC rating D63

Description

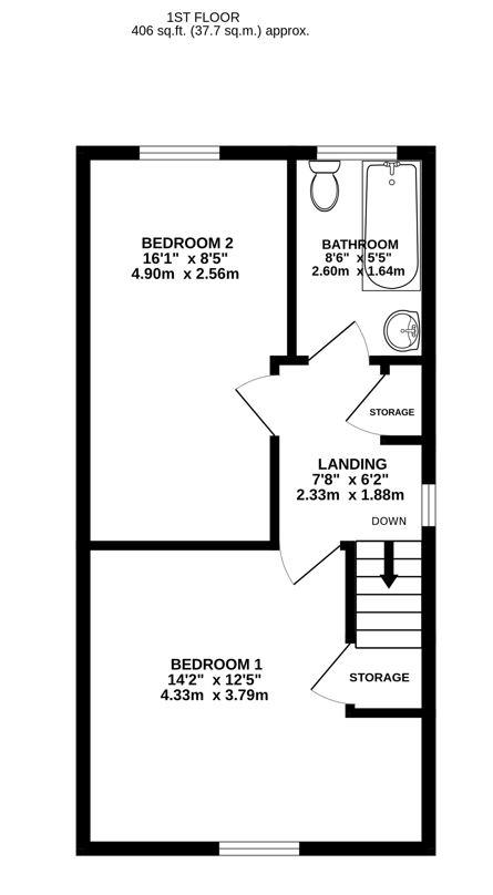
Entrance Hall

Door to entrance hall. Access to kitchen and living room. Under-stairs storage cupboard. Stairs rising to the first floor. Radiator.

Kitchen/Diner

uPVC double-glazed window to front elevation. Range of wall and base units, stainless steel sink with mixer tap and drainer, under-counter fridge/freezer, washing machine and space for freestanding cooker. Radiator.

Living Room

uPVC double-glazed French doors to rear garden and uPVC double-glazed window to rear elevation. Feature fireplace. Radiator.

Master Bedroom

uPVC double-glazed window to front elevation. Over-stairs storage cupboard. Radiator.

Bedroom Two

uPVC double-glazed window to rear elevation. Radiator.

Bathroom

uPVC double-glazed window to rear elevation. Low-level WC, bath with electric shower over and wash hand basin. Radiator.

Outside

The front garden is fully enclosed and is low maintenance, it is laid to slate tiles and has a concrete footpath to the property. There is a wooden canopy with outside cupboard. The rear garden can be accessed from the driveway, property or side. It is laid to lawn and currently boasts a large wooden garage structure. The garage has a door off the garden and also double doors from the driveway. The driveway can be found at the rear and has parking for two tandem vehicles.

Location

The property is located on the edge of Stonehouse town and is situated approximately three miles west of Stroud and twelve miles south of Gloucester. Local facilities in the town include a Co-op with a post office, several restaurants and a variety of shops. Stonehouse is an ideal location for commuting and also benefits from a railway station which has regular services to London and Cheltenham.

Tenure, Services and Local Authority

Freehold
All mains services are believed to be connected to the property.
Stroud District Council. Tax Band B: £1,714.12 (2023/24).


Location


Floorplan

Floorplan for Cedar Gardens, Stonehouse Floorplan for Cedar Gardens, Stonehouse Floorplan for Cedar Gardens, Stonehouse

EPC

EPC for Cedar Gardens, Stonehouse

Video Tour

Invalid video URL provided.

Similar Properties

Artemus Silvey Close, Great Oldbury, Stonehouse
For Sale

Artemus Silvey Close, Great Oldbury, Stonehouse

3 Bed Terraced House For Sale
Guide price £289,950
Thomas Tudor Way, Great Oldbury, Stonehouse
For Sale

Thomas Tudor Way, Great Oldbury, Stonehouse

3 Bed Semi-detached house For Sale
Guide price £300,000
Great Oldbury Drive, Great Oldbury, Stonehouse
For Sale

Great Oldbury Drive, Great Oldbury, Stonehouse

3 Bed Detached house For Sale
Guide price OIRO £449,950