Elm Road, Stonehouse

3 bedroom Terraced House for sale

£289,000

  • 3
  • 2
  • 2
  • 997 sq ft

Summary

Conveniently located close to local schools and amenities, this delightful mid-terrace house has three sizeable double bedrooms and is available on a 50% or 100% shared ownership scheme if required. The accommodation is spread across three floors, on the ground floor there is an open plan living room/kitchen/diner and cloakroom. The first floor has two double bedrooms and the family bathroom whilst the third floor boasts the master suite with en-suite and wardrobe, as well as additional storage cupboard. The property benefits from off road parking for two vehicles and an enclosed and low-maintenance rear garden. This modern home is ideal for those looking to enjoy a blend of comfort, style, and practicality in a desirable area as it is within very close proximity to local amenities.

Key Features

  • Mid-terrace town house with sizeable bedrooms in a cul-de-sac location
  • Spread across three floors giving plenty of space for families and couples alike
  • Three double bedrooms including master with en-suite and storage cupboard
  • Enclosed and low-maintenance garden with rear access
  • Driveway parking for two vehicles side by side
  • Within close proximity to local schools and shops
  • Available on a 50% leasehold share or 100% freehold share - ideal flexibility for buyers
  • Freehold
  • Council tax band C (£2,257.93)
  • EPC rating B85

Description

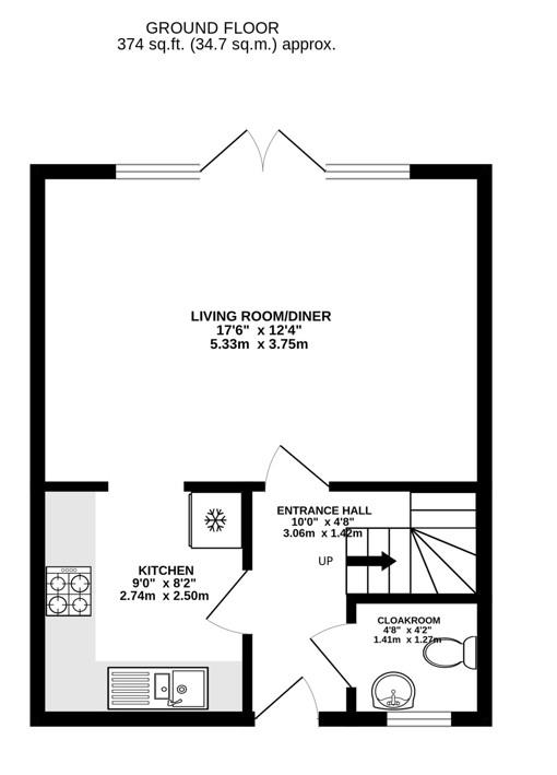
Entrance Hall

uPVC door to entrance hall. Access to living room, kitchen, cloakroom and stairs rising to the first floor. Radiator.

Living Room/Diner

uPVC double-glazed French doors to rear garden with windows either side. Access to kitchen. Two radiators.

Kitchen

uPVC double-glazed window to front elevation. Range of wall and base units with appliances to include one and a half bowl sink with mixer tap and drainer, four ring gas hob, oven, dishwasher and built-in fridge/freezer.

Cloakroom

uPVC double-glazed window to front elevation. Low-level WC and wash hand basin. Radiator.

Bedroom One

uPVC double-glazed window to rear elevation. Access to en-suite and storage cupboard. Radiator.

En-Suite Shower Room

uPVC double-glazed window to front elevation. Low-level WC, wash hand basin and corner shower cubicle. Heated towel rail.

Bedroom Two

uPVC double-glazed window to rear elevation. Radiator.

Bedroom Three

uPVC double-glazed window to front elevation. Radiator.

Bathroom

uPVC double-glazed window to rear elevation. Low-level WC, wash hand basin and bath with shower over. Storage cupboard. Radiator.

Outside

The front of the property has a gravelled driveway for two cars. The rear garden is fully enclosed, it is low-maintenance with AstroTurf and patio. There is a storage shed and gate to rear path.

Location

The property is located just on the edge of Stonehouse town. Local facilities include a Co-op with a Post Office, restaurants, primary and secondary schools. The property is approximately two miles to Junction 13 of the M5 motorway providing access to Gloucester, Cheltenham and Bristol. Stonehouse railway station has a regular train service to London and Cheltenham. The town is situated approximately three miles west of Stroud and twelve miles south of Gloucester.

Material Information

Tenure: Freehold.
Council tax band: C.
Local authority and rates: Stroud District Council - £2,257.93 (2025/26).
Electricity supply: mains.
Water supply: mains.
Sewerage: mains.
Heating: gas central.
Broadband speed: 15 Mbps (basic) and 57 Mbps (superfast).
Mobile phone coverage: EE, Three, O2 and Vodafone.

Agents Note

This property is currently operating on a 50% shared ownership scheme. The purchaser will be purchasing the 50% share and staircasing the remaining 50% share during the conveyancing.


Location


Floorplan

Floorplan for Elm Road, Stonehouse Floorplan for Elm Road, Stonehouse Floorplan for Elm Road, Stonehouse Floorplan for Elm Road, Stonehouse

EPC

EPC for Elm Road, Stonehouse

Similar Properties

Gloucester Road, Stonehouse
For Sale

Gloucester Road, Stonehouse

2 Bed Semi-detached house For Sale
Guide price £185,000
Court View, Stonehouse
For Sale

Court View, Stonehouse

3 Bed End of terrace house For Sale
Guide price £270,000
Sydney, Stonehouse
For Sale

Sydney, Stonehouse

2 Bed Semi-detached house For Sale
Guide price £229,950