Hawthorn Rise, Stroud

1 bedroom Maisonette Sold STC

£115,000

  • 1
  • 1
  • 1
  • 434 sq ft

Summary

Situated in the popular Hawthorn Rise, this one bedroom maisonette offers the opportunity to add your own stamp. The property has generous accommodation throughout to include a living/dining room, kitchen and bathroom as well as a double bedroom. There is one allocated parking space and a front garden laid to lawn. The maisonette is ideal for those looking to make a property their own and is being offered to the market CHAIN FREE.

Key Features

  • First floor mainsonette
  • Double bedroom
  • Garden space located out the front of the property
  • One allocated parking space
  • Opportunity to add your own stamp
  • Chain free
  • Ground rent of approximately £15 per annum
  • Leasehold - 999 years from December 1977 with 978 years remaining
  • Council tax band A (£1,517.75)
  • EPC rating E45

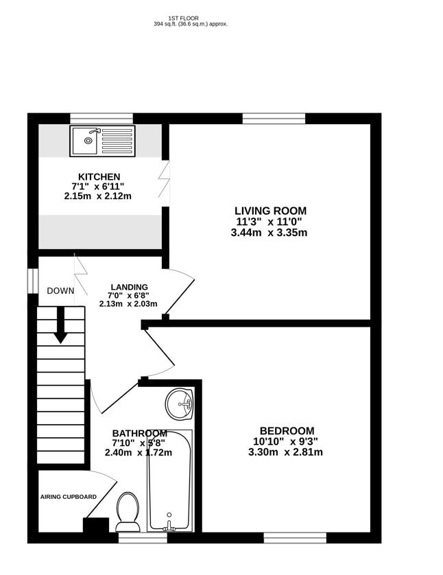
Description

Entrance Hall

uPVC double-glazed door to entrance hall and stairs rising to the first floor.

Landing

Single-glazed window to side elevation. Access to accommodation.

Living Room/Diner

uPVC double-glazed window to rear elevation. Access to kitchen.

Kitchen

uPVC double-glazed window to rear elevation. Rang of wall and base units with stainless steel sink with mixer tap and drainer.

Bedroom

uPVC double-glazed window to front elevation.

Bathroom

uPVC double-glazed window to front elevation. Low-level WC, wash hand basin and bath. Storage cupboard.

Outside

The property has one allocated off road parking space. The front garden is laid to lawn.

Location

The property is located in Cashes Green, there are local amenities such as the Co-Operative with post office, Factory Shop and fish and chip shop. There are a wider range of facilities in Stroud, including larger supermarkets and eateries.

Material Information

Tenure: Leasehold - 999 years from December 1977 with 978 years remaining.
Ground rent: approximately £15 per annum paid to Maple 107 Limited.
Council tax band: A.
Local authority and rates: Stroud District Council - £1,517.75 (2025/26).
Electricity supply: mains.
Water supply: mains.
Sewerage: mains.
Heating: no heating.
Broadband speed: 7 Mbps (basic) and 68 Mbps (superfast).
Mobile phone coverage: EE, Three, O2 and Vodafone.


Location


Floorplan

Floorplan for Hawthorn Rise, Stroud Floorplan for Hawthorn Rise, Stroud Floorplan for Hawthorn Rise, Stroud

EPC

EPC for Hawthorn Rise, Stroud

Similar Properties

Unwin Road, Cheltenham
For Sale

Unwin Road, Cheltenham

3 Bed End of terrace house For Sale
Guide price £280,000
Paganhill Lane, Stroud
Sold STC

Paganhill Lane, Stroud

3 Bed Cottage Sold STC
Guide price £265,000
Stanley End, Selsley, Stroud
Sold STC

Stanley End, Selsley, Stroud

2 Bed End of terrace house Sold STC
Guide price £215,000