Cotswold Road, Cashes Green, Stroud

3 bedroom Semi-detached house for sale

£299,950

  • 3
  • 2
  • 1
  • 1,133 sq ft

Summary

Located in the popular Cashes Green area in Stroud, this delightful semi-detached house on Cotswold Road offers a perfect blend of comfort and convenience. The property has spacious accommodation throughout. The ground floor offers an entrance hall, living room, kitchen/family room, lobby and lean to. On the first floor are two double bedrooms and one generous single, all with wardrobes and further storage, there is also a family bathroom. The South West facing garden has been well tended and offers a pond, raised bed borders and a storage shed. There is driveway parking for three vehicles and a single garage.

Key Features

  • Semi-detached house
  • Two double bedrooms and one generous single all with wardrobes and storage
  • Kitchen/family room ideal for socialising
  • Lobby with wall and base units creating an extra storage area
  • Shed, external storage and single garage
  • South West facing garden
  • Driveway parking for three vehicles
  • Freehold
  • Council tax band B (£1,971.15)
  • EPC rating C71

Description

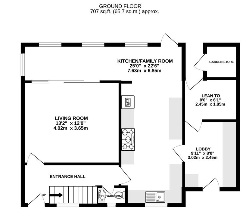
Entrance Hall

uPVC double-glazed door to entrance hall and uPVC double-glazed window to front elevation. Access to living room, kitchen, understairs cupboard, cloakroom and stairs rising to the first floor. Radiator.

Living Room

uPVC double-glazed window to family room and uPVC double-glazed sliding doors to family room. Fireplace with electric fire. Radiator.

Kitchen/Family Room

uPVC double-glazed window to front elevation, three uPVC double-glazed windows to rear elevation, uPVC double-glazed door to garden and uPVC double-glazed door to lobby. Range of wall and base units with appliances to include sink with mixer tap and drainer, five ring gas hob and eye-level double oven. There is space for a fridge/freezer, washing machine and slimline dishwasher. Two radiators.

Cloakroom

uPVC double-glazed window to front elevation. Low-level WC and wash hand basin.

Lobby

uPVC double-glazed door to front, uPVC double-glazed door to kitchen and access to lean to. Wall and base units with space for further appliances.

Lean To

Wooden door to pathway leading to garden. Power.

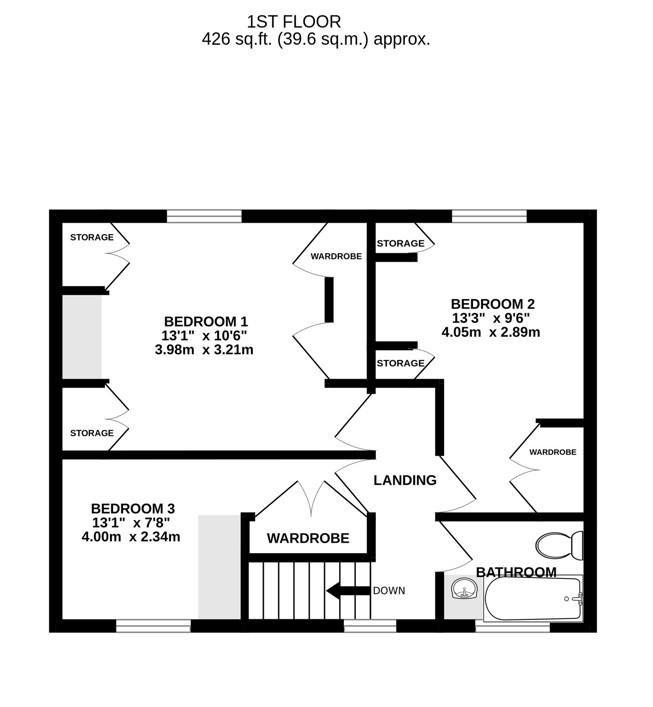
Bedroom One

uPVC double-glazed window to rear elevation. Wardrobes, storage cupboards and dressing table. Radiator.

Bedroom Two

uPVC double-glazed window to front elevation. Wardrobes and storage cupboards. Radiator.

Bedroom Three

uPVC double-glazed window to front elevation. Wardrobes and fitted desk with cupboards. Radiator.

Bathroom

uPVC double-glazed window to front elevation. Low-level WC, wash hand basin and bath with shower over. Heated towel rail.

Outside

The property benefits from driveway parking for three vehicles. The South West facing garden is well presented and generous in size, it is mostly laid to lawn with a patio space and gravel space. There is also raised bed borders with a pond and a footpath to the rear shed. There is a further storage shed off the lean to and a single garage.

Location

The property is located in Cashes Green, there are local amenities such as the Co-Operative supermarket, coffee bars, and hairdressers. Foxmoor Primary School and Cashes Green Primary School is within walking distance. Other schools such as Archway Secondary School, Marling Grammar for boys and Stroud High for Girls can be found nearby. The property is situated within close proximity to Elm Road playing fields. A wider range of facilities is available in Stroud where you will find a variety of restaurants, an award winning twice weekly farmers market, leisure and sports centre and there is also a main line railway station with intercity services connecting to London (Paddington), Gloucester and Cheltenham. Junction 13 of the M5 motorway is also within easy driving distance.

Material Information

Tenure: Freehold.
Council tax band: B.
Local authority and rates: Stroud District Council - £1,971.15 (2026/27).
Electricity supply: mains.
Water supply: mains.
Sewerage: mains.
Heating: gas central heating.
Broadband speed: 10 Mbps (basic), 80 Mbps (superfast) and 2,000 Mbps (ultrafast).
Mobile phone coverage: EE, Three, O2 and Vodafone.


Location


Floorplan

Floorplan for Cotswold Road, Cashes Green, Stroud Floorplan for Cotswold Road, Cashes Green, Stroud Floorplan for Cotswold Road, Cashes Green, Stroud

EPC

EPC for Cotswold Road, Cashes Green, Stroud

Video Tour

Similar Properties

Byron Road, Stroud
For Sale

Byron Road, Stroud

3 Bed Semi-detached house For Sale
Guide price £335,000
Paganhill Lane, Stroud
Sold STC

Paganhill Lane, Stroud

3 Bed Cottage Sold STC
Guide price £265,000
Stanley End, Selsley, Stroud

Stanley End, Selsley, Stroud

2 Bed End of terrace house
Guide price £215,000