Merchants Quay, Gloucester Docks

1 bedroom Apartment for sale

£140,000

  • 1
  • 1
  • 1
  • 474 sq ft

Summary

Situated in the heart of the ever popular Gloucester Docks is this beautiful one bedroom apartment within the popular Crest Nicholson built development of Merchants Quay is offered to the market with no onward chain. This modern waterside apartment boasts flexible living accommodation with integrated kitchen appliances along with secure allocated parking. With a potential rental income of £895 pcm, this apartment has much to offer investors and residential buyers alike.

Key Features

  • No onward chain
  • Immaculately presented one bedroom apartment
  • Juliet balcony from the lounge with views towards the Victoria basin
  • Secure allocated parking space
  • Potential Rental Income Of £895 pcm
  • EPC Rating C80
  • Gloucester City Council - Tax Band B (£1,826.36 per annum) 2026/2027

Description

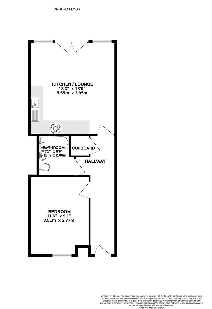
Entrance Hallway

Spacious entrance hallway, with secure intercom system, provides access to the bedroom, bathroom, living area and to a built-in storage cupboard.

Lounge / Kitchen

Open plan living area with convenient space for lounge and dining space with Juliet balcony boasting waterside views towards the Victoria basin. The kitchen area benefits from ample worktop and storage space with integrated appliances to include fridge, freezer, washing machine, four ring gas hob and electric oven.

Bedroom

Spacious double bedroom with window facing to the front aspect.

Bathroom

Modern white suite family bathroom comprising of w,c, wash hand basin, large mirror and bath with shower attachment over.

Outside

The gated secure entrance opens to the communal area of the Merchants Quay development with cycle racks provided alongside lift and stair access to the third floor. The apartment is complete with a secure allocated parking space located in the Barge Arm East development.

Location

With views towards the main basin, Merchants Quay constructed in 2011 is an open air development situated in the heart of the historic Gloucester Docks. Transformed in recent years to become a sought after residential area, the popular destination holds developments throughout the year to include the Food Festival, Tall Ships Festival and the Victorian Christmas Market. There are a number of amenities on offer within Gloucester Quays Shopping Centre and the Leisure Quarter including a state of the art 10 screen cinema and a number of restaurants and bars.

Material Information

Tenure: Leasehold with 183 years remaining on the lease. Managed by Ash & Co with an annual service charge of £2,166, split between building maintenance, management and insurance alongside the Docks Service Charge (DSC) to include the security, cctv, cleaning and maintenance for the private Docks estate, operated by GDECL. No ground rent is payable. *Information correct as of 23/3/26*

*EWS1 form has been granted as of 15/04/26*

Local authority and rates: Gloucester City Council - Tax Band B (£1,826.36 per annum) 2026/2027.
Electricity supply: Mains
Heating: Gas central heating.
Water supply: Mains
Sewerage: Mains
Broadband speed: Basic 18 Mbps, Superfast 80 Mbps - Highest available download speed.
Mobile phone coverage: EE, Vodafone, Three, O2.


Location


Floorplan

Floorplan for Merchants Quay, Gloucester Docks

EPC

EPC for Merchants Quay, Gloucester Docks

Similar Properties

Gloucester Street, Newent
For Sale

Gloucester Street, Newent

2 Bed Detached bungalow For Sale
Guide price £275,000
Whitefriars Apartments, Market Parade, Gloucester
For Sale

Whitefriars Apartments, Market Parade, Gloucester

2 Bed Apartment For Sale
Guide price £265,000
Foley Road, Newent
For Sale

Foley Road, Newent

3 Bed Semi-detached house For Sale
Guide price £269,950